Ház
Origó
HázOrigoval pont a központban

Pest megye, Budaörs


 

Ingatlan adatai

Irányár: 208 000 000 Ft
Típus: ház
Kategória: eladó
Alapterület: 140 m2
Fűtés: elektromos
Állapota: -
Szobák száma: 4
Építés éve: 1920
Szintek száma: -

Részletes leírás

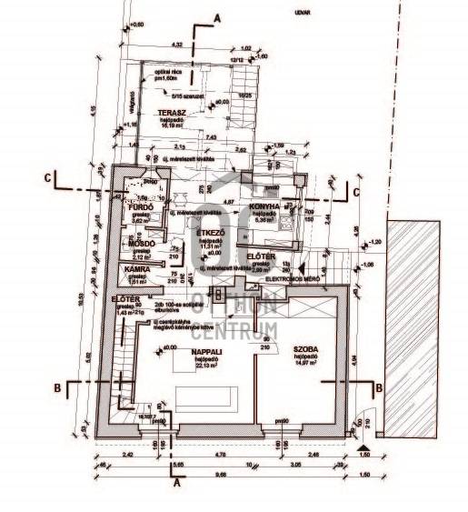
Budaörsön, központi helyen bruttó 163 nm-es önálló családi ház eladó. A telek 569 nm. A ház teljes felújításon esett át 2013 ban, a tető 2025-ben lett beépítve. A ház alagsorában található tároló pince, garázs. Földszinten, konyha, étkező, nappali, kamra, fürdőszoba, hálószoba, terasz.Emeleten 2 hálószoba, fürdőszoba.Fűtése, elektromos norvég panel illetve légkondicionáló berendezés biztosítja.Ezen kívül egy fa tüzelésű kályha van a nappaliban. Új nyílászárók kerültek beépítésre. 6Kw os napelem van a házon, ami segíti a ház energia ellátását. Pince, garázs: 72.5 nmFöldszint: 45 nmEmelet: 45 nmÖsszesen 162.5 nm Terasz 16 nmTömegközlekedés könnyen elérhető. Ideális választás egy család számára, akik egy kedves otthont keresnek.

További adatok

Telekterület: 569 m2
Kert mérete: 569 m2
Erkély mérete: 16 m2
Felszereltség: -
Parkolás: -
Kilátás: -
Egyéb extrák:  
-

Hirdető adatai

Hirdető neve: Otthon Centrum
Kapcsolattartó: Varga Zoltán
Hirdető telefonszáma: +36 70 461 9881
Honlap: -