Ház
Origó
HázOrigoval pont a központban

Pest megye, Tárnok


 

Ingatlan adatai

Irányár: 98 000 000 Ft
Típus: ház
Kategória: eladó
Alapterület: 91 m2
Fűtés: gáz (cirko)
Állapota: új
Szobák száma: 4
Építés éve: 2026
Szintek száma: -

Részletes leírás

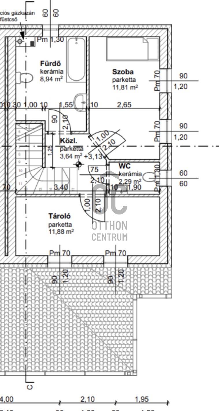
TÁRNOKON ÚJÉPÍTÉSŰ IKERHÁZHÁZ:- 98 nm nappali + 3 szoba 2 szinten- 2026-ben épül- minőségi anyagokból- Porotherm tégla + 15 cm dryvit szigetelés- cserép tetőfedés, műanyag nyílászárók- gáz cirka + padlófűtés- Hideg-meleg burkolatok választhatók- 3x32 A áramellátás- remek elosztású , napfényes- 2 DB KLÍMATELEK:- 250 nm saját telek- termőföld feltöltés- elektromos kapu előkészítés- viacolor járdák és dupla autóbeálló- körbe kerítve, utcafronton betonelemes kerítésElhelyezkedés:- Budapesttől 35 percre- Iskola, óvoda, bevásárlási lehetőség pár perc sétáraREFERENCIA HÁZAK MEGTEKINTHETŐK!HITEL ÉS CSOK igényelhető! Minden hivatalos ügyintézésben segítünk!10%-TÓL MÁR MOST FOGLALHATÓ!ÁTADÁS: 2026-06

További adatok

Telekterület: 250 m2
Kert mérete: 250 m2
Erkély mérete: 18 m2
Felszereltség: -
Parkolás: -
Kilátás: -
Egyéb extrák:  
-

Hirdető adatai

Hirdető neve: Otthon Centrum
Kapcsolattartó: Andreopulos Niki
Hirdető telefonszáma: +36 70 716 8706
Honlap: -