Ház
Origó
HázOrigoval pont a központban

Pest megye, Taksony


 

Ingatlan adatai

Irányár: 115 900 000 Ft
Típus: ház
Kategória: eladó
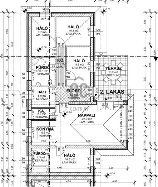
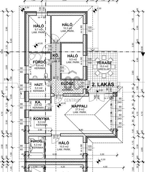
Alapterület: 103 m2
Fűtés: -
Állapota: új
Szobák száma: 5
Építés éve: 2026
Szintek száma: -

Részletes leírás

HÁZ:- 103 nm nappali + 4 szoba- 2026-ben épül- minőségi anyagokból- Porotherm tégla + 15 cm dryvit szigetelés- cserép tetőfedés, műanyag nyílászárók- beépített redőnytok- hőszivattyú fűtés rendszer + padlófűtés- Hideg-meleg burkolatok választhatók 6-7000 Ft/nm- riasztó, klíma előkészítés- 1x32 A áramellátás- földszintes, remek elosztású , napfényesTELEK:- 553 nm saját telek- autó beállási lehetőség- elektromos kapu előkészítés- betonozott járdák és beálló- körbe kerítve, utcafronton betonelemes kerítésElhelyezkedés:- Budapesttől 25 percre- Iskola, óvoda, bevásárlási lehetőség pár perc sétáraREFERENCIA HÁZAK MEGTEKINTHETŐK!HITEL ÉS CSOK igényelhető! Minden hivatalos ügyintézésben segítünk!30 %-TÓL MÁR MOST FOGLALHATÓ!ÁTADÁS: 2026-07

További adatok

Telekterület: 553 m2
Kert mérete: 553 m2
Erkély mérete: 15 m2
Felszereltség: -
Parkolás: -
Kilátás: -
Egyéb extrák:  
-

Hirdető adatai

Hirdető neve: Otthon Centrum
Kapcsolattartó: Andreopulos Niki
Hirdető telefonszáma: +36 70 716 8706
Honlap: -