Ház
Origó
HázOrigoval pont a központban

Pest megye, Tököl


 

Ingatlan adatai

Irányár: 109 900 000 Ft
Típus: ház
Kategória: eladó
Alapterület: 108 m2
Fűtés: -
Állapota: új
Szobák száma: 5
Építés éve: 2026
Szintek száma: -

Részletes leírás

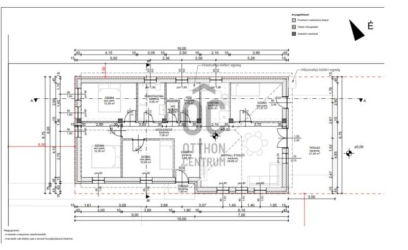
Tökölön eladó újépítésű önálló családi ház• nettó 108 m2• amerikai konyhás nappali + 4 tágas hálószoba• fűtése: 10 kw-os, monoblokkos hőszivattyú, padlófűtés az egész házban• törölközőszárítós radiátor a fürdőszobában• beépített tartályos wc• választható burkolatok (hideg-meleg: 6.500,- Ft / m2 segédanyagokkal együtt)• riasztó rendszer alapszerelés, kábelezés• kapcsolók, konnektorok 45 db, ezen felül 14.500,- Ft/db• műanyag nyílászárók, műanyag ablakpárkányok• 15 cm homlokzati szigetelés • 30 cm födémszigetelés• térkövezett kocsibeálló 40 m2 (4500ft/m2)• szép, újépítésű környezetBuszmegálló 400 méterÁtadás: 2026 május-június

További adatok

Telekterület: 742 m2
Kert mérete: 742 m2
Erkély mérete: 21 m2
Felszereltség: -
Parkolás: -
Kilátás: -
Egyéb extrák:  
-

Hirdető adatai

Hirdető neve: Otthon Centrum
Kapcsolattartó: Joó Krisztina
Hirdető telefonszáma: +36 70 469 3111
Honlap: -