Ház
Origó
HázOrigoval pont a központban

Somogy megye, Siófok


 

Ingatlan adatai

Irányár: 98 000 000 Ft
Típus: ház
Kategória: eladó
Alapterület: 73 m2
Fűtés: egyéb
Állapota: új
Szobák száma: 4
Építés éve: 2026
Szintek száma: -

Részletes leírás

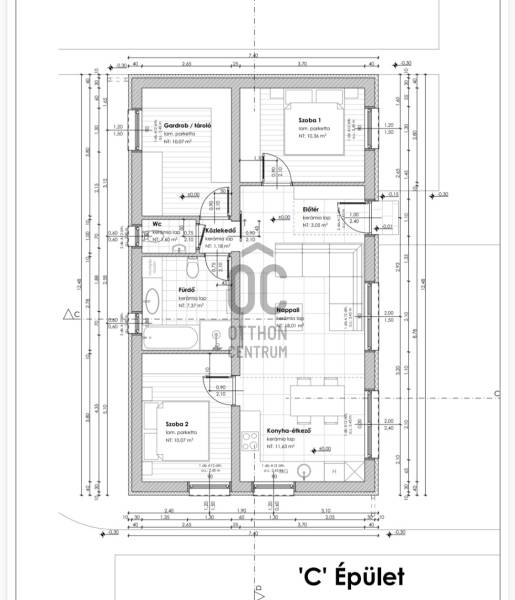
OTTHON START HITELRE ALKALMAS.Kedveli a nyugalmat és a modern életstílust?Az új építésű ház Siófok Fokihegy városrészében található, egy csendes és biztonságos környéken, ahol a természet közelsége és a városi élet előnyei egyaránt megtalálhatók.Az ingatlan 93 négyzetméteres alapterülettel rendelkezik. Nettó 75 m²-es, D-Dny-i tájolású.Főbb jellemzők:- Kiváló építési minőség: 30 cm-es tégla falazat és 10 cm-es grafitos hőszigetelés, melyek garantálják a kiváló hőszigetelést és az alacsony energiafogyasztást.- Modern fűtési és hűtési megoldások: Padlófűtés és klímás hűtés biztosítja az ideális hőmérsékletet bármely évszakban. (Klíma: 3,5kw)- Prémium nyílászárók: 3 rétegű, fehér nyílászárók, előkészítve a redőnytokok elhelyezésére.- Energiahatékonyság: Az ingatlan rendelkezik az A minősítésű energetikai tanúsítvánnyal, amely biztosítja a kedvező fenntarthatóságot és alacsony rezsiköltségeket.- Stílusos tetőfedés: Betoncserép tető, amely nemcsak tartós, hanem esztétikus megjelenést is biztosít.- Kiváló elhelyezkedés: Csendes, családbarát környék, ugyanakkor könnyen elérhetők a város fontosabb pontjai. Utcafrontra néző.A 204 négyzetméteres telek lehetőséget biztosít a kertészkedésre vagy akár medence kialakítására is.A ház belső elrendezése rendkívül praktikus: amerikai konyhás nappali+ 3 szobával szobával rendelkezik. A tágas nappali világos és barátságos, ideális helyszín a közös családi programokhoz. A fürdőszoba egyaránt kényelmes és elegáns, a prémium kivitelezés pedig garantálja, hogy az ingatlan állapota kiváló legyen. A fürdőszobában tusoló és fürdőkád is rendelkezésre áll. A 10 négyzetméteres teraszra kilépve élvezheted a szabadban töltött időt.A Balaton part könnyen megközelíthető: 15 perc sétaút az újhelyi szabadstrand közelében.A környék ellátottsága kiváló, a közeli üzletek 8 LIdl), éttermek és szolgáltatások mindössze néhány percnyi sétára találhatók. A közlekedési csomópont közelsége miatt a kitűnő közlekedés mindenki számára biztosított, így könnyedén elérheted a város többi részét, legyen szó munkáról vagy szórakozásról.Várható átadás: Az ingatlan 2026 augusztusi átadással készül el, így ideális választás azoknak, akik a legmodernebb otthonban képzelik el jövőjüket.Ez a ház a legújabb építési normáknak megfelelően készül, és mind a kiváló minőségű anyagok, mind az energiahatékonyság terén a legmagasabb elvárásoknak is megfelel.Ez a tehermentes ingatlan kisállattal is költözhető, így a család minden tagja otthon érezheti magát. A minimalista kialakítás és a modern részletek teszik ezt az ingatlant igazán exkluzív hellyé, ahol a kényelem és a stílus találkozik.Ha szeretnél többet tudni erről a fantasztikus lehetőségről, ne habozz, keresd bátran kérdéseiddel!

További adatok

Telekterület: 204 m2
Kert mérete: 204 m2
Erkély mérete: 10 m2
Felszereltség: -
Parkolás: -
Kilátás: -
Egyéb extrák:  
-

Hirdető adatai

Hirdető neve: Otthon Centrum
Kapcsolattartó: Takács Anna
Hirdető telefonszáma: +36 70 461 9421
Honlap: -