Ház
Origó
HázOrigoval pont a központban

Budapest, XII.kerület


 

Ingatlan adatai

Irányár: 350 000 000 Ft
Típus: ház
Kategória: eladó
Alapterület: 365 m2
Fűtés: gáz (cirko)
Állapota: -
Szobák száma: 8
Építés éve: 1989
Szintek száma: -

Részletes leírás

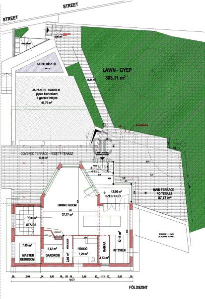
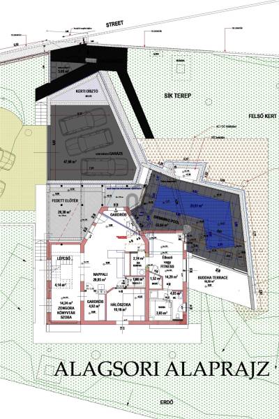
CSILLEBÉRC – ERDŐSZÉLI OTTHON, AHOL A NYUGALOM KEZDŐDIKA XII. kerület egyik legkülönlegesebb, természetközeli részén, Csillebércen kínálunk megvételre egy valóban egyedi adottságokkal rendelkező családi házat.A 1514 m²-es, erdővel határos telken álló, 365 m²-es, négyszintes otthon ritka lehetőséget kínál mindazok számára, akik a város közelségét szeretnék ötvözni a teljes nyugalommal és privát élettérrel.Az ingatlan különleges értéke az elhelyezkedése: a telek közvetlenül az erdő mellett található, így a mindennapokat madárcsicsergés, zöld panoráma és zavartalan intimitás kíséri. Itt valóban úgy érezheti, mintha a természet része lenne – mégis Budapest egyik legkeresettebb kerületében élhet.A földszinten egy világos, amerikai konyhás nappali fogad, amely a közös családi pillanatok természetes központja lehet. Ezen a szinten található a kamra és egy kényelmes master bedroom is.Az emeleten négy külön nyíló szoba és egy tágas fürdőszoba kapott helyet, így a család minden tagja számára biztosított a saját élettér.Az alsó szinten egy igazi különlegesség található: wellness részleg beltéri medencével, szaunával és jakuzzival. Ez a szint akár önálló lakrészként is kialakítható, így többgenerációs otthonként vagy vendégtérként is ideális.A pince szinten három fűtött tárolóhelyiség található, amelyek irodának, műhelynek vagy hobbiszobának is tökéletesen használhatók.A házhoz tartozó 57 m²-es terasz kiváló helyszíne lehet családi reggeliknek, baráti vacsoráknak vagy egy nyugodt esti borozásnak a természet közelségében.Főbb adatok:– Telek: 1514 m²– Lakótér: 365 m²– 8 szoba, 3 fürdőszoba– Wellness részleg: medence, szauna, jakuzzi– 57 m²-es terasz– Padlófűtéses gáz cirkó rendszer– Déli tájolás, világos terekA XII. kerületben rendkívül ritka az ilyen méretű telekkel és közvetlen erdőkapcsolattal rendelkező családi ház.

További adatok

Telekterület: 1 514 m2
Kert mérete: 1 514 m2
Erkély mérete: 58 m2
Felszereltség: -
Parkolás: -
Kilátás: -
Egyéb extrák:  
-

Hirdető adatai

Hirdető neve: Otthon Centrum
Kapcsolattartó: Szántai Andrea
Hirdető telefonszáma: +36 70 388 5391
Honlap: -