Ház
Origó
HázOrigoval pont a központban

Pest megye, Törökbálint


 

Ingatlan adatai

Irányár: 110 000 000 Ft
Típus: ház
Kategória: eladó
Alapterület: 120 m2
Fűtés: elektromos
Állapota: új
Szobák száma: 3
Építés éve: 2026
Szintek száma: -

Részletes leírás

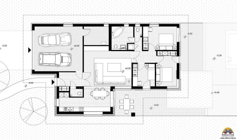
LeírásTÖRÖKBÁLINTON ÚJLIGETEN PANORÁMÁS TELKEN, ÚJ ÖNÁLLÓ CSALÁDI HÁZ, ALKALMI ÁRON!!Törökbálint kiemelt részén Tükörhegyen, eladó egy új építésű 3 szobás garázsos, önálló körbejárható földszintes családi ház, év végi átadással.TOVÁBBI ELÉRHETŐ INGATLANOK:ár: 122 millió forint120 nm-es önálló családi ház, 3 szoba + garázs, 700 nm nagy telek, év végi átadás.- műszaki tartalom: beton sávalap, 30 cm-es főfalak, 10 cm-es válaszfalak, fafődém, ( 25 cm-es kőzet gyapot szigetelés), 15 cm-es külső dryvit szigetelés, elektromos redőny, klíma,7000 ft/ nm a burkolatokra,riasztó + napelem előkészítés, fűtés: hőszivattyú + padlófűtés, 3 rtg, 6 légkamrás nyílászárók, stb.- a közelben, iskola, óvoda, bevásárló központ,- közlekedés: M7 kocsival 5 perc, pár perc sétára a távolsági járatok elérhetők,Ingyenes hitel tanácsadással, kedvezményes jogi képviselettel lehetünk segítségére.Energetikai szakvéleményre van szüksége? Jó helyre fordult.Megtetszett az ingatlan, de sajátját még nem adta el? Levesszük a gond nagy részét a válláról, segítséget nyújtunk az eladásban is. Bízza ránk az értékesítését!Kérésre ingyenes értékbecslést is végzünk az ingatlanán,hívjon minket bizalommal.

További adatok

Telekterület: 580 m2
Kert mérete: 580 m2
Erkély mérete: 20 m2
Felszereltség: -
Parkolás: -
Kilátás: -
Egyéb extrák:  
-

Hirdető adatai

Hirdető neve: Otthon & City ingatlan iroda
Kapcsolattartó: Farkas László
Hirdető telefonszáma: +36702400618
Honlap: -