Ház
Origó
HázOrigoval pont a központban

Pest megye, Gödöllő


 

Ingatlan adatai

Irányár: 199 000 000 Ft
Típus: ház
Kategória: eladó
Alapterület: 516 m2
Fűtés: gáz (cirko)
Állapota: -
Szobák száma: 14+1
Építés éve: 1985
Szintek száma: -

Részletes leírás

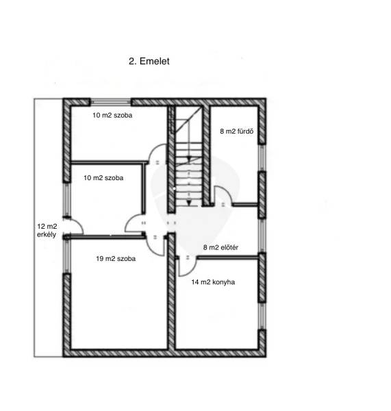
Eladó ingatlan Gödöllőn, a Fenyves városrészben! Ingatlanbeszámítás is érdekes lehet, értékegyeztetéssel Budapesten, Pest megyében, vagy megyeszékelyen. A Fenyvesi Nagyúton található, összesen 516 m² hasznos alapterületű (bruttó 600 m²-es) épület egy 1.408 m²-es telken helyezkedik el. Az ingatlan jogilag két különálló lakóházként van nyilvántartva, amelyekben, valamint egy melléképületben összesen hat apartman került kialakításra. A fűtés típusa apartmanonként eltérő: egyes lakrészekben gázkazán biztosítja a meleget, míg másokban vegyestüzelésű kazán működik.A nagyobb épületA telken lévő két épület közül a korábban, 1984-ben épült ház háromszintes, összesen 240 m² alapterületű. A földszint 60 m²-es, itt kapott helyet egy tágas amerikai konyhás nappali, a lépcsőház és a terasz. Az első emelet 90 m²-es, ahol három hálószoba, egy kádas fürdőszoba és egy erkély található. A második szint ugyanezzel az elrendezéssel alakítható ki, ám ez a rész jelenleg befejezetlen állapotban van. Az erkélyről és a felsőbb szintekről lenyűgöző panoráma nyílik a környékre.Ez az épület 2023-ban teljes körű felújításon esett át, amely magában foglalta az elektromos hálózat, a gépészet, a nyílászárók, a burkolatok és a konyhabútor cseréjét is. Igény esetén az emeleti szintek külön bejárattal is elláthatók, mivel a lépcsőház az épület szélén helyezkedik el, és a telek mérete lehetővé teszi ezt a megoldást.A földszinten, külön bejárattal egy 28 m²-es kis apartman is helyet kapott.A második épületA 2007-ben épült másik ház földszint + emelet kialakítású, 30 cm vastag Porotherm téglából épült.A földszinten két apartman található:Egy 78 m²-es, nappali + két hálószobás, sarokkádas fürdőszobával és külön WC-vel rendelkező lakás.Egy 32 m²-es kisebb lakrész, ahol a fürdőszoba jelenleg külön bejárattal rendelkezik, de könnyedén egybenyitható a lakótérrel.Az emeletre külső lépcsőn keresztül lehet feljutni, ahol egy modern, nappali + két hálószobás, 68 m²-es apartman kapott helyet.Melléképületből kialakított stúdiólakásA hatodik apartman egy 60 m²-es melléképületből lett átalakítva. Jelenleg egy tágas stúdiólakásként funkcionál, ahol a fürdőszoba külön helyiségben található. Igény szerint egy hálószoba is leválasztható.Az udvaron korábban autókereskedő vállalkozás telephelye működött, ehhez az infrastruktúra most is rendelkezésre áll. Kinek ajánljuk?Ez az ingatlan kiváló lehetőség befektetők számára, vagy azoknak, akik több lakrész kiadásából szeretnének stabil bevételt biztosítani maguknak. Az elhelyezkedés, az apartmanok száma és az ingatlan adottságai mind-mind remek lehetőséget kínálnak a hosszú távú hasznosításra.

További adatok

Telekterület: 1 408 m2
Kert mérete: 1 408 m2
Erkély mérete: -
Felszereltség: -
Parkolás: -
Kilátás: panorámás
Egyéb extrák:  
-

Hirdető adatai

Hirdető neve: Intor Ingatlan Powered By RH
Kapcsolattartó: Salétros Dániel
Hirdető telefonszáma: +36 70 412 5816
Honlap: -