Ház
Origó
HázOrigoval pont a központban

Pest megye, Sülysáp


 

Ingatlan adatai

Irányár: 69 990 000 Ft
Típus: ház
Kategória: eladó
Alapterület: 92 m2
Fűtés: -
Állapota: új
Szobák száma: 4
Építés éve: 2025
Szintek száma: -

Részletes leírás

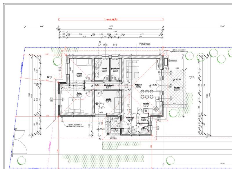
Sülysápon, a Határ úton, 960 m²-es telken kínálunk eladásra háromszobás, amerikai konyhás nappalival rendelkező, energiatakarékos családi házakat. Csendes környezetben, egymástól teljesen különálló házak, nincsen összeépítve. Megbízható, több referenciával rendelkező kivitelezőtől.Az épületek kiemeléssel, külön helyrajzi számon kerülnek nyilvántartásba, így önálló tulajdonként vásárolhatók meg. A házak elrendezése úgy lett kialakítva, hogy mindegyik ingatlanhoz közel 480 m²-es telekrész tartozzon.A szerkezet Porotherm P30N+F téglából épül, betonkoszorúval és fa födémszerkezettel. A lábazat 10 cm lépésálló polisztirollal, a homlokzat 10 cm grafitos szigeteléssel, míg a födém 25 cm ásványgyapottal kerül szigetelésre.Háromrétegű üvegezésű, hat légkamrás műanyag nyílászárókA megfelelő hőszigetelés mellett a megújuló energiát hasznosító gépészet is hozzájárul az alacsony fenntartási költségekhez. Fűtés: levegő-víz hőszivattyúVálasztható műszaki tartalom: Hidegburkolat: 3.000 Ft/m²Melegburkolat: 3.000 Ft/m²Beltéri ajtók: 30.000 Ft/dbFürdőkád: 40.000 FtCsaptelepek: 15.000 Ft/dbMagasabb árkategóriájú termékek választása is lehetséges, az árkülönbözet megtérítésével.Az építtető korábbi elkészült projektjei referenciaként elérhetőek és megtekinthetőek! A képeken meglévő ingatlan, referenciaképként szerepel. A jelen ingatlan is hasonló terv alapján épül meg.

További adatok

Telekterület: 480 m2
Kert mérete: 480 m2
Erkély mérete: 15 m2
Felszereltség: -
Parkolás: -
Kilátás: udvari
Egyéb extrák:  
-

Hirdető adatai

Hirdető neve: Intor Ingatlan Powered By RH
Kapcsolattartó: Kollár Ábel Gergő
Hirdető telefonszáma: +36 70 412 5808
Honlap: -