Ház
Origó
HázOrigoval pont a központban

Bács-Kiskun megye, Baja


 

Ingatlan adatai

Irányár: 35 000 000 Ft
Típus: lakás (tégla)
Kategória: eladó
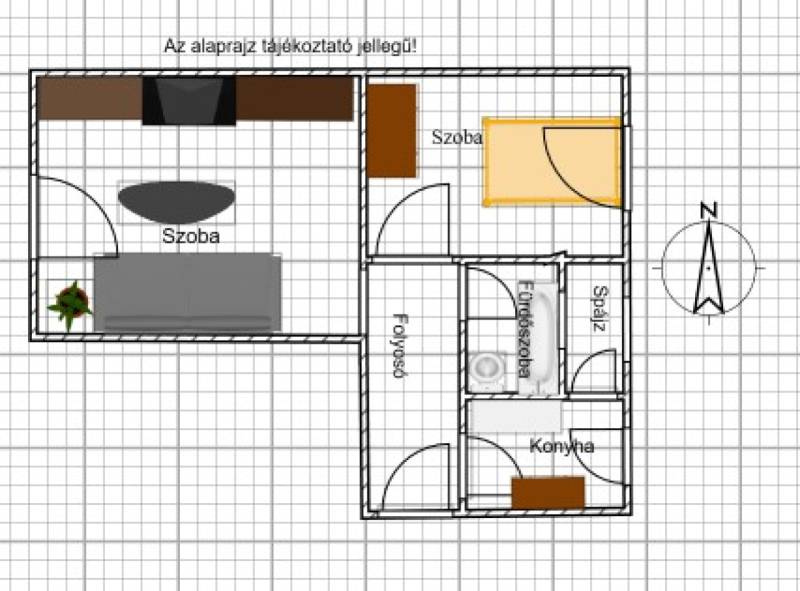
Alapterület: 50 m2
Fűtés: gáz (konvektor)
Állapota: -
Szobák száma: 2
Építés éve: 1960
Szintek száma: 1

Részletes leírás

Belvárosközeli lakás eladó Baján – Kiváló befektetés! Baján, a Jelky tér közelében, a belvárostól pár perc sétára eladó egy 50 m²-es, első emeleti, tégla építésű lakás, kiváló elhelyezkedéssel!Elrendezés:✔ 2 különálló szoba✔ konyha✔ folyosó✔ kádas fürdőszoba✔ spájzA nyílászárók az épületben és a lakásban is korszerű műanyagra lettek cserélve. A lépcsőház rendezett, jó lakóközösséggel.Az épülethez zárt udvar tartozik, ahol saját udvari beállási lehetőség biztosított az ott lakók számára. Lokáció, ami eladja önmagát:– belváros pár perc sétára– Kossuth utca közelsége– vasútállomás és buszpályaudvar gyorsan elérhető– főiskola a közelben– több általános iskola és óvoda a környéken Elhelyezkedése miatt befektetésnek is tökéletes választás, könnyen kiadható albérletbe!✔ Per- és tehermentes✔ Gyors birtokbaadás Irányár: 35.000.000Ft

További adatok

Telekterület: -
Kert mérete: -
Erkély mérete: -
Felszereltség: -
Parkolás: -
Kilátás: utcai
Egyéb extrák:  
-

Hirdető adatai

Hirdető neve: GDN Ingatlanhálózat
Kapcsolattartó: Farkasné Kasza Brigitta
Hirdető telefonszáma: +36-20-326-3059
Honlap: -