Ház
Origó
HázOrigoval pont a központban

Budapest, XVI.kerület


 

Ingatlan adatai

Irányár: 199 900 000 Ft
Típus: ház
Kategória: eladó
Alapterület: 115 m2
Fűtés: -
Állapota: új
Szobák száma: 3+2
Építés éve: 2017
Szintek száma: -

Részletes leírás

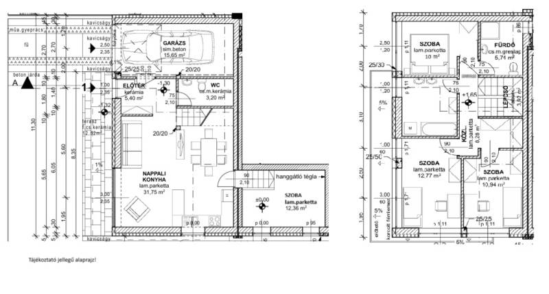
CSAK NÁLUNK! ÚJSZERŰ, NAPELEMES, FŰTHETŐ MEDENCÉS IKERHÁZ ELADÓ SASHALOM KIEMELT RÉSZÉN – ZUGLÓ HATÁRÁNPrémium műszaki tartalom, alacsony rezsi, kiváló lokáció – itt valóban nincs kompromisszum.Sashalom egyik legkeresettebb, csendes kertvárosi utcájában, mindössze 100 méterre Zuglótól kínálunk megvételre egy 8 éve épült, újszerű állapotú, bruttó 139 m²-es ikerházat, 332 m²-es, gondozott telken.Főbb paraméterek:- Bruttó terület: 139 m²- Telek területe: 332 m²- Építés éve: 2017ELRENDEZÉSFöldszint - kertkapcsolattal:- Világos, délnyugati tájolású nappali–konyha–étkező- Hálószoba- Fürdőszoba WC-vel- Előszoba, közlekedő- Garázs közvetlenül az előszobábólA nappaliból közvetlen kijárat nyílik a teraszos kertbe, ahol egy5×3 méteres, beépített, hőszivattyúval fűthető medence,6 m²-es faház, valamint tűzrakóhely került kialakításra.A fűthető medence nemcsak a nyári hónapokban, hanem egész évben valódi kikapcsolódást biztosíthat.A térkövezett udvar két autó parkolását teszi lehetővé.Az egyedi tervezésű konyhabútor beépített gépekkel, kerámialapos főzőlappal felszerelt.Emelet:- 3 különnyíló hálószoba- Tágas fürdőszoba WC-vel és káddal- Az egyik hálószobához saját, zuhanyzós fürdőszoba tartozikMűszaki tartalom, energetika:- Hőszivattyús fűtés–hűtés rendszer- Teljes épületben padlófűtés, emeleten kiegészítő falfűtés- Nyári hűtés: földszinten klíma, emeleten falhűtés- 14,3 kWh teljesítményű napelemes rendszer, szaldó elszámolással- Porotherm Klíma tégla falazat, 15 cm homlokzati hőszigetelésselA modern műszaki megoldások kedvező energetikai besorolást és alacsony költségeket biztosítanak.Extrák:- Riasztórendszer- Beépített konyhagépek- Fűthető medence- Garázs + 2 felszíni gépkocsibeállóLokáció és infrastruktúra:- Bölcsőde, óvoda gyalogosan elérhető- Iskola, orvosi rendelő, játszótér, bevásárlási lehetőségek pár perces távolságbanÖrs Vezér tere– autóval kb. 5 perc, tömegközlekedéssel ~10 percÖsszegzésEz az ingatlan nem kompromisszumos, hanem tudatos választás:kiváló műszaki tartalom, átgondolt elrendezés, fűthető medencés kert és kitűnő lokáció egyben.Amennyiben felkeltette érdeklődését, várom hívását vagy üzenetét, és örömmel állok rendelkezésére további információval, illetve személyes megtekintéssel kapcsolatban. Megtekintés előre egyeztetett időpontban, elsősorban hétvégén.Eladná ingatlanát?Értékesítésében átgondolt stratégiával, aktív jelenléttel és végigkísért folyamattal állok rendelkezésére.A hirdetésben szereplő adatok tájékoztató jellegűek, nem minősülnek ajánlattételnek.

További adatok

Telekterület: 332 m2
Kert mérete: 332 m2
Erkély mérete: 12 m2
Felszereltség: -
Parkolás: -
Kilátás: kertre néző
Egyéb extrák:  
-

Hirdető adatai

Hirdető neve: GDN Ingatlanhálózat
Kapcsolattartó: Tromposch Edina
Hirdető telefonszáma: +36-30-220-9539
Honlap: -