Ház
Origó
HázOrigoval pont a központban

Budapest, V.kerület


 

Ingatlan adatai

Irányár: 189 900 000 Ft
Típus: lakás (tégla)
Kategória: eladó
Alapterület: 83 m2
Fűtés: -
Állapota: felújított
Szobák száma: 2
Építés éve: 1906
Szintek száma: -

Részletes leírás

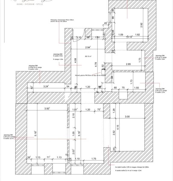
Exkluzív lehetőség a Hercegprímás utcában – Bank Center szomszédságábanBudapest belvárosának egyik legkeresettebb részén, a Hercegprímás utcában, a Bank Center közvetlen szomszédságában, patinás épület földszintjén kínálunk eladásra egy kivételes adottságokkal rendelkező lakást.Az ingatlanhoz kész látványtervek, teljes körű tervezői dokumentáció és megvalósítható koncepció áll rendelkezésre. A tervek kivitelezése – külön megállapodás keretében – igény szerint biztosított, így a vásárló akár egy teljesen koordinált projektet is átvehet.Műszaki tartalom: • víz- és villanyszerelés kiépítve • korszerű padlófűtés hőszivattyúval • hűtés előkészítése megtörtént • betonozás és vakolás kész • új, önálló villanyóra és szabványosított mérőhely • bojler beépítve • hideg- és melegburkolatok rendelkezésre állnak, a vételár részét képezik • egyedi gyártású fa nyílászárók, szintén az ár részét képezikA lakás előkészítettsége jelentős idő- és költségmegtakarítást biztosít, miközben lehetőséget ad az egyéni igények szerinti végső kialakításra.Ideális választás mindazok számára, akik értékálló belvárosi otthont vagy prémium befektetést keresnek, kiemelkedő lokációban, Budapest szívében.

További adatok

Telekterület: -
Kert mérete: -
Erkély mérete: -
Felszereltség: -
Parkolás: -
Kilátás: udvari
Egyéb extrák:  
-

Hirdető adatai

Hirdető neve: GDN Ingatlanhálózat
Kapcsolattartó: Gecse Balázs
Hirdető telefonszáma: +36-70-336-9901
Honlap: -