Ház
Origó
HázOrigoval pont a központban

Győr-Moson-Sopron megye, Gyarmat


 

Ingatlan adatai

Irányár: 70 900 000 Ft
Típus: ház
Kategória: eladó
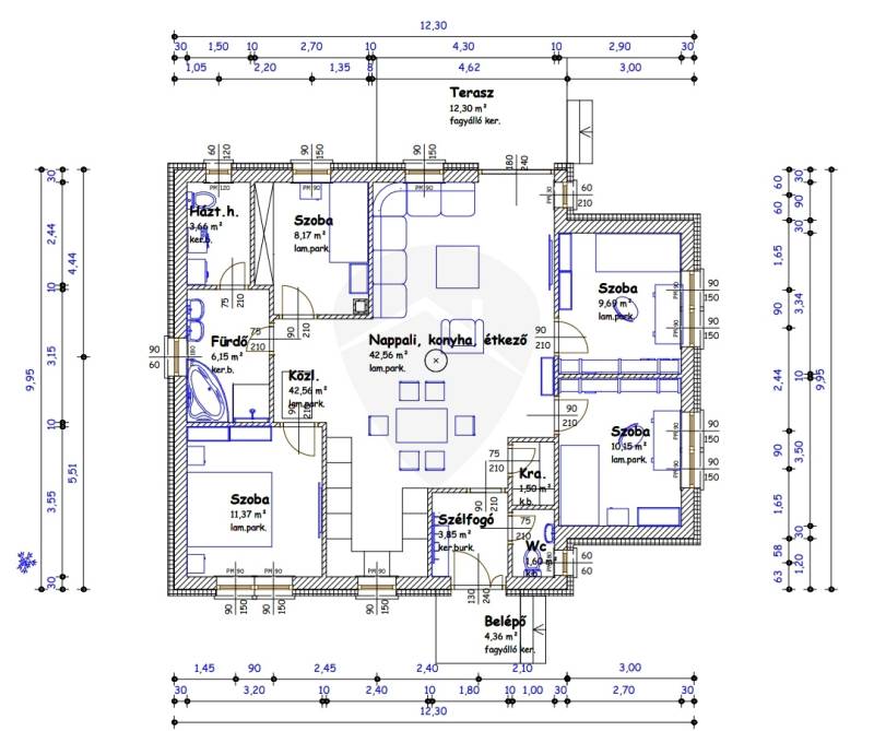
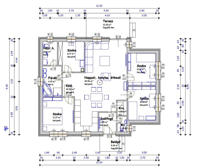
Alapterület: 110 m2
Fűtés: gáz (cirko)
Állapota: új
Szobák száma: 4+1
Építés éve: 2025
Szintek száma: -

Részletes leírás

Győr közelében Gyarmaton, újonnan épülő, igényes kialakítású, tégla építésű családi ház leköthető.A nappali + négy szobával(vagy akár több szobával) rendelkező ingatlan alapterülete nettó 110 m2, mely igény szerint módosítható.A praktikusan tervezett házban a szobákon kívül tágas és napfényes amerikai konyhás nappali, gardrób, kamra, szélfogó, közlekedő, fürdőszoba, háztartási helyiség és egy külön mellékhelyiség is kialakításra kerül.Az élhető méretű telek összesen 1000 m2-es, mely 30%-ban beépíthető.A feltüntetett vételár az emelt szintű fűtés kész árat és a telek árát tartalmazza, de igény esetén kulcsra kész befejezésre is van lehetőség!Továbbá az ár tartalmazza a komplett tervező díjat(gépészet, metszetek, statika, energetika, engedélyek), plusz egy inverteres(hűtő-fűtő) klímát!A jelenlegi árajánlatban az otthon melegéről gáz-cirkó kazán gondoskodik, padlófűtéses hőleadással, de a fűtésrendszer is az építtető igényei alapján módosítható!A részletes műszaki leírást és az Építőipari cég weboldalát kérésére e-mailben elküldöm.Más az elképzelése? Válassza ki Ön a saját elképzeléseinek megfelelő alaprajzot!Amennyiben teljesen egyedi tervezést szeretne, az is lehetséges!A képek látványtervek.További kérdés esetén állok rendelkezésére!Amennyiben megbízható építtetőt szeretne, referenciamunkákkal, minőségi anyagokkal és kivitelezéssel, hívjon bizalommal akár hétvégén is!Teljes körű ügyintézéssel:- ügyvéd- biztosítás- hiteltanácsadás- Generálkivitelezés- teljeskörű ingatlanfelújítás- CSOK, babváró, áfa visszaigénylés - állunk rendelkezésére!

További adatok

Telekterület: 1 000 m2
Kert mérete: 1 000 m2
Erkély mérete: 12 m2
Felszereltség: -
Parkolás: -
Kilátás: udvari
Egyéb extrák:  
-

Hirdető adatai

Hirdető neve: B&B Ingatlan powered by RH tanácsadói
Kapcsolattartó: Kolofon-Balogh Noémi
Hirdető telefonszáma: +36 70 412 5691
Honlap: -