Ház
Origó
HázOrigoval pont a központban

Bács-Kiskun megye, Baja


 

Ingatlan adatai

Irányár: 72 900 000 Ft
Típus: ház
Kategória: eladó
Alapterület: 114 m2
Fűtés: egyéb
Állapota: -
Szobák száma: 3
Építés éve: 1930
Szintek száma: -

Részletes leírás

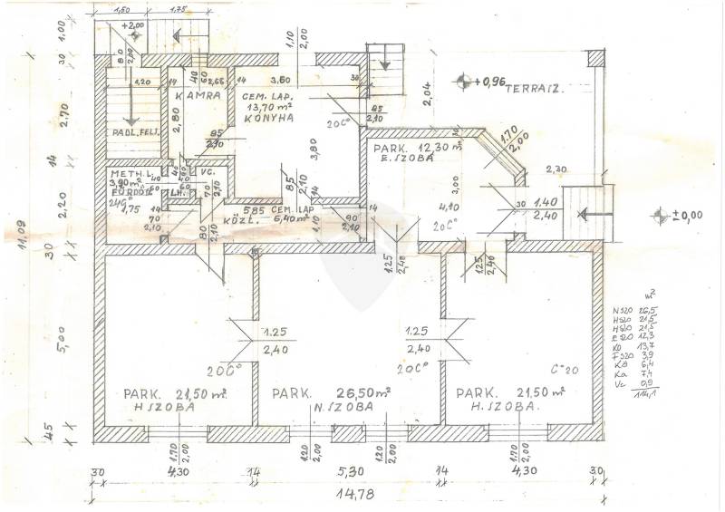
Baja a Belvárosban, kedvelt, nyugodt részen kínálunk megvételre egy 114 m²-es, tégla falazatú, KNY-i tájolású családi házat, 525 m²-es telken. Az ingatlan átlagos állapotú, jól karbantartott, azonnal lakható, ugyanakkor igény szerint korszerűsíthető.A ház 3 nagyméretű szobával rendelkezik, így ideális lehet családoknak, illetve azoknak is, akik otthoni munkavégzésben gondolkodnak. A konyha–nappali–étkező világos, napfényes tereket biztosít a mindennapokban.A fűtés kétféleképpen is megoldott: külön gázkazán, valamint fakazán is rendelkezésre áll, ami gazdaságos és rugalmas használatot tesz lehetővé. A meleg vizet bojler biztosítja.Az ingatlanhoz tartozik egy 20 m²-es garázs és egy 18 m²-es terasz, ideális pihenéshez, családi összejövetelekhez. A teljes ház alatt található egy szuterén, ahol akár szaunát vagy borospincét is ki lehetne alakítani.Aki az ingatlant bővíteni szeretné, annak a teljes padlástér akár beépítésre is szolgálhat.A környék csendes, családias, rendezett utcákkal és jó szomszédsággal. A közelben megtalálhatók boltok, iskola, óvoda, orvosi ellátás, valamint tömegközlekedési lehetőségek is, így a mindennapi élet kényelmesen szervezhető. Ez az ingatlan ideális választás lehet családoknak, többgenerációs megoldást keresőknek, vagy azoknak, akik egy jól alakítható, stabil szerkezetű házat keresnek jó adottságú telken.Irányár: 72.900.000 Ft

További adatok

Telekterület: 525 m2
Kert mérete: 525 m2
Erkély mérete: 18 m2
Felszereltség: -
Parkolás: -
Kilátás: udvari
Egyéb extrák:  
-

Hirdető adatai

Hirdető neve: Bánóczky Ingatlan
Kapcsolattartó: Bánóczky Endre
Hirdető telefonszáma: +36 70 412 5785
Honlap: -