Ház
Origó
HázOrigoval pont a központban

Veszprém megye, Veszprém


 

Ingatlan adatai

Irányár: 149 000 000 Ft
Típus: ház
Kategória: eladó
Alapterület: 120 m2
Fűtés: -
Állapota: új
Szobák száma: 5
Építés éve: 2025
Szintek száma: -

Részletes leírás

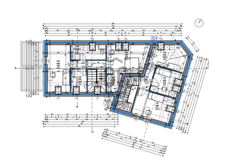
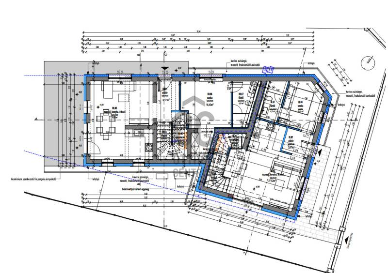
Veszprém kiváló, Újtelep városrészen, családi házas, csendes zöldövezetében, megvételre kínálok egy új építésű ikerházat.Jelenleg a belső munkálatok folynak (60-70%-os készültségfok), a burkolatokat, szanitereket az új tulajdonos még kiválaszthatja.Az épület jogilag teljesen rendezett, tehermentes és két lakásos társasházként,külön albetétként, fog funkcionálni.A nagyszerű adottságai miatt, teljesen szeparált, külön bejáratú, egymástól szinte független megoldásokkal épül.A ház földszintjén amerikai konyhás nappali-étkező,konyha, fürdőszoba és egy hálószoba található.A felső szinten három hálószoba és egy fürdőszoba/háztartási helyiséggel kerül kialakításra. A lakáshoz egy 10m2-es terasz, egy udvari beálló és kb. 200m2-es saját kert tartozik.Tájolása kitűnő, körbenapozott, világos DNyi-ti tájolású.A belváros pár perces sétával, Balaton szintén gyorsan, 10perc alatt megközelíthető.Energetikai besorolása:A+Hőszivattyús fűtése(padlófűtés) és hűtése lesz, Panasonic hőszivattyú került beépítésre.-három rétegű Rehau nyílászárók-betoncserép-30-as tégla falazat- 15 cm homlokzat szigetelésTervezett átadás ideje:2026 május végeAz ára a kulcsrakész állapotra vonatkozik.Rugalmasan megtekinthető.

További adatok

Telekterület: 296 m2
Kert mérete: 296 m2
Erkély mérete: 14 m2
Felszereltség: -
Parkolás: -
Kilátás: -
Egyéb extrák:  
-

Hirdető adatai

Hirdető neve: Otthon Centrum
Kapcsolattartó: Boros Ildikó
Hirdető telefonszáma: +36 70 716 8116
Honlap: -