Ház
Origó
HázOrigoval pont a központban

Budapest, XI.kerület


 

Ingatlan adatai

Irányár: 350 000 000 Ft
Típus: ház
Kategória: eladó
Alapterület: 266 m2
Fűtés: -
Állapota: új
Szobák száma: 5
Építés éve: 2026
Szintek száma: -

Részletes leírás

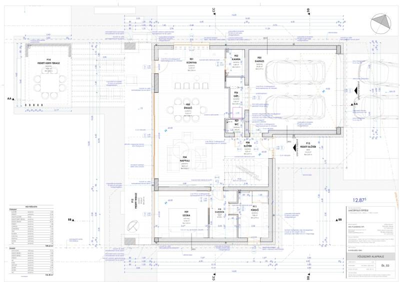
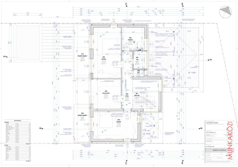
A gyönyörű panorámájú, szerkezetkész épület, napfényes D-K-i tájolású, 2 szintes, lakóterülete 266 nm, nappali + 4 hálószobás, (a szobák teraszkapcsolattal rendelkeznek). duplakomfortos, mely egy 1045 nm-es sík telken helyezkedik el. Kilátás nyílik itt, Budaörsre, Frankhegyre, és Budapestre is. A tervezői koncepció része volt, hogy a környező tájra néző panoráma szerves része legyen az enteriőrnek, így a ház szinte valamennyi helyisége napfényes, panorámás\" kilátó\" lett.Az épület földszintjén kap helyet a közösségi zóna, valamint szeparáltan a privát helységek, szülői háló, fürdő, gardrób.Az emeleten 2 gyerekszoba, dolgozó, + fürdőszoba kerül kialakításra.A házat átgondolt tervek alapján prémium minőségben és a legkorszerűbb anyagok felhasználásával tervezték kialakítani. A meglévő tervek alapján fűtése és hűtése a jelenleg legkorszerűbb hőszivattyús rendszerre lett optimalizálva. Az enteriőrt beépített méretre készült egyedi bútorok, világítótestek, tapéták, textiliák, teszik egyedivé és különlegessé.Az épület vasbeton sávalapra épült. Lábazata zártcellás polisztirol hőszigetelésű, fagyálló lábazati burkolattal van ellátva. Homlokzati falai 30 cm-es vastagságú falazóelemekből álnak, melyre 20 cm vastag közetgyapot hőszigetelő rendszer lett tervezve. A válaszfalak 10 cm vastagságú vázkerámia falazóblokkokból készültek. Az épületben statikailag méretezett monolit vasbeton födém készült. A 3 rétegű alumínium nyílászárók 2026 január végén kerülnek beépítésre.AZ ÉPÜLET SZERKEZETKÉSZ ÁLLAPOTBAN ELADÓ!Értékesítés követően a komplett tervdokumentáció, beleértve a műszaki leírás, villamos hálózati és gépészeti tervek, valamint a belsőépítészeti tervek is átadásra kerülnek. Ezt a házat érdemes megnézni!TOVÁBBI RÉSZLETES TÁJÉKOZTATÁSÉRT VÁROM MEGTISZTELŐ HÍVÁSÁT. (HÉTVÉGÉN IS)EA

További adatok

Telekterület: 1 045 m2
Kert mérete: 1 045 m2
Erkély mérete: 53 m2
Felszereltség: -
Parkolás: -
Kilátás: panorámás
Egyéb extrák:  
-

Hirdető adatai

Hirdető neve: GDN Ingatlanhálózat
Kapcsolattartó: Egri Attila
Hirdető telefonszáma: +36-30-442-1415
Honlap: -