Ház
Origó
HázOrigoval pont a központban

Budapest, XI.kerület


 

Ingatlan adatai

Irányár: 125 500 000 Ft
Típus: lakás (újépítésű)
Kategória: eladó
Alapterület: 50 m2
Fűtés: -
Állapota: új
Szobák száma: 2
Építés éve: 2028
Szintek száma: -

Részletes leírás

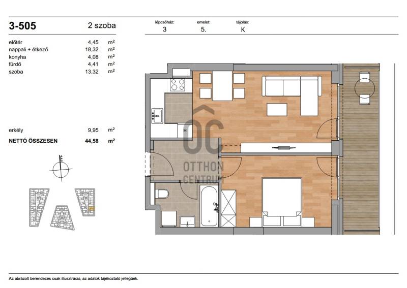
Budapest XI. kerületének egyik leggyorsabban fejlődő városrészében, közvetlenül a Duna-part közelében kínálunk megvételre egy 5. emeleti, nettó 44,58 m² alapterületű, nappali + 1 hálószobás lakást. Az ingatlanhoz egy 9,95 m² erkély is tartozik, ahonnan a környező épületek között Dunára nyíló kilátást biztosít.Mitől igazán különleges ez az otthon?- Keleti tájolású, világos lakás, tágas erkéllyel, amely jól használható kültéri térként.- Nappali + külön hálószobás elrendezés, jól bútorozható, praktikus kialakítással.- Rendezett, csendes lakópark, zöldfelületek közelében, jó közlekedési kapcsolatokkal.- Korszerű műszaki tartalom: megfelelő hő- és hangszigetelés, WPC burkolatú terasz, energiatakarékos, okosvezérlésű fűtés-hűtés.LOKÁCIÓ:- A lakás a Duna-part nyugalmát ötvözi a város minden kényelmével:- Savoya Park és Etele Plaza 10 perc autóval- Kopaszi-gát mindössze 4 km- Móricz Zsigmond körtér 13 perc busszal- Villamos- és buszmegállók pár perc sétatávolságra- A környéken minden szolgáltatás elérhető: éttermek, bevásárlási lehetőségek, iskolák- A lokáció a természetközeli életérzést, a vízpart közelségét, valamint a budai városi életstílus minden előnyét ötvözi.MŰSZAKI TATALOM – a jövő technológiája már ma- Környezetbarát levegős hőszivattyús rendszer, mennyezeti hűtés-fűtés, helyiségenként szabályozható termosztátokkal- Okosvezérlés, távvezérelhető hőmérséklet-szabályozás- Háromrétegű nyílászárók prémium hő- és hangszigeteléssel- Zöldtető és hővisszanyerős szellőzés- Közösségi zöldterek és pihenőkertek, parkosított udvarok- Extrák és kényelmi szolgáltatásokA LAKÁSHOZ GARÁZSBEÁLLÓ IS TARTOZIK, amely a vételár részét képzi.VÁRHATÓ ÁTADÁS:- Szerkezetkész: 2027. február- Kulcsrakész: 2028. decemberEz az ingatlan ideális választás mindazok számára, akik modern, magas műszaki színvonalú otthont keresnek a Duna közelében, budai környezetben, legyen szó saját célú vásárlásról vagy hosszú távú befektetésről.További információért vagy kérdés esetén forduljon hozzám bizalommal!Díjmentes, bankfüggetlen hiteltanácsadást biztosítunk, valamint igény szerint ügyvédi közreműködés, energetikai tanúsítvány és villamos biztonsági felülvizsgálat is elérhető.

További adatok

Telekterület: -
Kert mérete: -
Erkély mérete: 10 m2
Felszereltség: -
Parkolás: -
Kilátás: kertre néző
Egyéb extrák:  
-

Hirdető adatai

Hirdető neve: Otthon Centrum
Kapcsolattartó: Arany Bálint
Hirdető telefonszáma: +36 70 388 6116
Honlap: -