Ház
Origó
HázOrigoval pont a központban

Pest megye, Kerepes


 

Ingatlan adatai

Irányár: 149 900 000 Ft
Típus: ház
Kategória: eladó
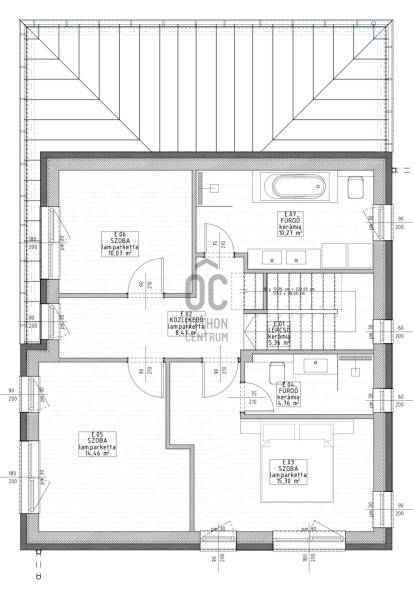
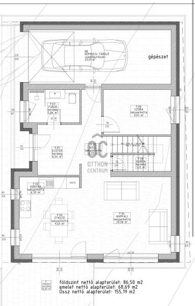
Alapterület: 155 m2
Fűtés: -
Állapota: új
Szobák száma: 5
Építés éve: 2026
Szintek száma: -

Részletes leírás

Új építésű, prémium mínőségű, családi ház eladó Kerepesen a Panoráma lakóparkban.Az épület garázzsal és kocsibeállóval épül, összesen 155 m²-es hasznos alapterülettel.Az ingatlan közel 400 m²-es saját telekrészen.Kulcsrakész ár: 149,9 M Ft.Tervezett átadás: 2026. június/júliusFőbb jellemzők:- Prémium minőségű anyaghasználat, magas műszaki tartalom- Hőszivattyús fűtés és hűtés, opcionálisan hővisszanyerős szellőztetés és napelem is kérhető- Elektromos mozgatású aluredőnyök- Egyedi igények szerint, választható burkolatok, szaniterek, nyílászárók- 3 fürdőszobaCsendes, jó levegőjű, zöldövezeti környezetben, egy kirándulásra is alkalmas fenyőerdő szomszédságában várja új tulajdonosát ez a modern, Kiváló elhelyezkedés:A közelben iskola, óvoda, bevásárlási lehetőségek, minden pár percen belül elérhető.Budapest, Örs vezér tere akár HÉV-vel is 20 percen belül elérhető.Ideális választás családoknak és ingázóknak egyaránt!

További adatok

Telekterület: 400 m2
Kert mérete: 400 m2
Erkély mérete: 15 m2
Felszereltség: -
Parkolás: -
Kilátás: -
Egyéb extrák:  
-

Hirdető adatai

Hirdető neve: Otthon Centrum
Kapcsolattartó: Horváth Jennifer Laura
Hirdető telefonszáma: +36 70 412 3606
Honlap: -