Ház
Origó
HázOrigoval pont a központban

Pest megye, Nyársapát


 

Ingatlan adatai

Irányár: 47 900 000 Ft
Típus: ház
Kategória: eladó
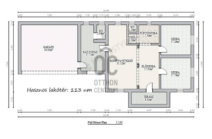
Alapterület: 113 m2
Fűtés: gáz (cirko)
Állapota: -
Szobák száma: 3
Építés éve: 1970
Szintek száma: -

Részletes leírás

Eladásra kínálok Nyársapát csendes részén egy szerkezetileg jól megépített, felújított családi házat!Az ingatlan téglából épült 1970-ben, és 1217 m² telken helyezkedik el.Az épület 2024-ben teljes körű felújítást kapott, melynek során kicserélték a teljes villany hálózatot, új burkolatokat kaptak a helyiségek. A nappaliban egy 5.3 kw inverteres, hűtő-fűtő funkcióval ellátott klíma biztosítja a kellemes hőmérsékletet.Új bejárati ajtó, és új műanyag nyílászárók kerültek behelyezésre az utcafront felöli szobáknál. A nappaliban régi de jó állapotú fa nyílászáró található, az ablakok redőnyösek.A korszerűsítés során új fűtésrendszert alakítottak ki.HASZNOS LAKÓTÉR 113 m²- kettő külön nyíló szoba- nappali- konyha+étkező- fürdőszoba+WC- előszobaA főépületből átjárható a kazánház, ahol egy WC+kézmosó is kialakításra került. Az ingatlanhoz tartozik egy 50 m² dupla garázs, ahonnan a kazánházon keresztül a konyha könnyen megközelíthető.A szépen gondozott, rendezett telken egy hangulatos kis tó, fúrt kút, az udvar hátsó részén ólak, és tárolók találhatóak.INGATLAN ELHELYEZKEDÉSEIskola, élelmiszerbolt, Polgármesteri Hivatal, Művelődési központ, pizzéria 500 méteren belül, gyalogosan is könnyen megközelíthető.MIÉRT AJÁNLOM A FIGYELMÉBE?- nem kell a felújítással bajlódnia- jelenlegi állapotában azonnal költözhető- alapvetően csendes, nyugodt, szép környéken helyezkedik el, zöldövezet mellett- per- és tehermentes ingatlanAmennyiben megtetszett Önnek ez a harmonikus családi ház, várom megtisztelő hívását az ország legismertebb ingatlanközvetítő hálózat tagjaként. Elérhető vagyok a hét minden napján.Érdemes tudni, hogy az Otthon Centrum több banknak is az egyik legnagyobb ügyfele, ezért nálunk kedvezőbb konstrukciókkal tud lakáshitelhez jutni, rövidebb időn belül! A hitelközvetítésünk ingyenes!#Nyársapát #kettőszoba+nappali #központifűtés #113m² #klíma #duplagarázs #téglaEz az ingatlan a \"Felező csomag\" megbízási portfólióhoz tartozik. Részletek az Otthon Centrum weboldalán.

További adatok

Telekterület: 1 463 m2
Kert mérete: 1 463 m2
Erkély mérete: 8 m2
Felszereltség: -
Parkolás: -
Kilátás: -
Egyéb extrák:  
-

Hirdető adatai

Hirdető neve: Otthon Centrum
Kapcsolattartó: Kállai Rózsa
Hirdető telefonszáma: +36 70 412 4131
Honlap: -