Ház
Origó
HázOrigoval pont a központban

Hajdú-Bihar megye, Tiszacsege


 

Ingatlan adatai

Irányár: 26 000 000 Ft
Típus: ház
Kategória: eladó
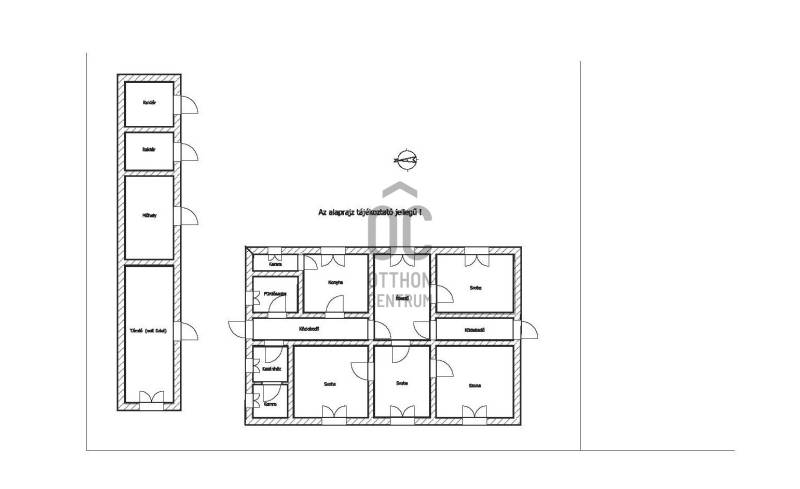
Alapterület: 134 m2
Fűtés: egyéb
Állapota: -
Szobák száma: 5
Építés éve: 1950
Szintek száma: -

Részletes leírás

Tiszacsege a Hortobágy és a Tisza ölelésében fekvő, csendes, barátságos település, amely egyaránt kínál nyugalmat és kiváló kikapcsolódási lehetőségeket. A város hangulatát a Tisza közelsége, a természeti értékek és a jellegzetes alföldi táj varázsa határozza meg. A környék kedvelt úti cél horgászok, természetkedvelők és a vízparti pihenést keresők számára.A helyi termálstrand gyógyhatású vize egész évben vonzza a látogatókat, a településen pedig minden fontos szolgáltatás megtalálható: bolt, gyógyszertár, orvosi ellátás, óvoda, iskola és éttermek is a lakók rendelkezésére állnak. A híres tiszacsegei halászlé különleges gasztronómiai élményt nyújt.A környék kiváló kiindulópont kirándulásokhoz, kerékpározáshoz és csónaktúrákhoz, a Hortobágy közelsége pedig páratlan természeti látványt biztosít.Tiszacsege így ideális választás mindazok számára, akik szeretnének egy békés, élhető, tiszaparti településen otthonra lelni.Ezen a településen kínálunk megvételre egy jó fekvésű, folyamatosan karbantartott, öt szobás, összközműves, központi fűtéses családi házat, amely tágas saroktelken helyezkedik el.A szobák burkolata laminált -, illetve hajópadló, míg a többi helyiség mozaikkő borítást kapott.A telken egy különálló kis épület is található, amely jelenleg műhelyként és tárolóként funkcionál, de akár önálló lakótérként is kialakítható.A boltíves pince kiválóan alkalmas zöldség és gyümölcs tárolására, a tágas, rendezett udvar pedig kellemes lehetőséget biztosít a szabadidő eltöltésére a friss falusi levegőn.Az ingatlan ideális választás mindazok számára, akik szívesen élnének egy hangulatos, tiszaparti, igazi alföldi településen.Amennyiben felkeltettük érdeklődését vagy kérdése van az ingatlannal kapcsolatban, készséggel állunk rendelkezésére!

További adatok

Telekterület: 1 121 m2
Kert mérete: 1 121 m2
Erkély mérete: -
Felszereltség: -
Parkolás: -
Kilátás: -
Egyéb extrák:  
-

Hirdető adatai

Hirdető neve: Otthon Centrum
Kapcsolattartó: Langné Kiss Piroska
Hirdető telefonszáma: +36 70 716 9891
Honlap: -