Ház
Origó
HázOrigoval pont a központban

Budapest, VI.kerület


Rózsa utca 

Ingatlan adatai

Irányár: 84 000 000 Ft
Típus: lakás (tégla)
Kategória: eladó
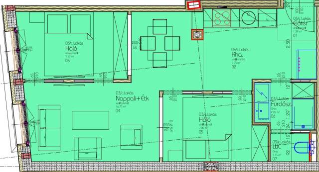
Alapterület: 48 m2
Fűtés: egyéb
Állapota: új
Szobák száma: 1+1
Építés éve: -
Szintek száma: 2

Részletes leírás

MÉG PÁR LAKÁS ELÉRHETŐ!!!A lakások jelenleg 99%-os készültségi szinten állnak. A használatbavételi engedélyezés folyamatban van. Az építésügyi hatóság engedélyét már megkapták. Az ingatlanok saját albetétként kerülnek bejegyzésre. A fűtésről hőszivattyús rendszer gondoskodik, padlófűtéssel és mennyezeti hűtés-fűtés megoldással. A lakásoknál közös előtér került kialakításra a szomszédos ingatlannal, amely kulturált, zárt, belső közlekedőként funkcionál. Az ingatlan újépítésűnek minősül, és úgynevezett resales konstrukcióban kerül értékesítésre. A szerződéskötés során a beruházó a vevő kijelölési jogát alkalmazza. A társasház teljes felújítása, külső-belső homlokzat megtörtént, lift kialakítása kész, udvar folyamatban, tervezés alatt.Fizetési ütemezés:85% a szerződéskötéskor (ebből 5% foglalóként)15% a birtokbaadáskor esedékes.

További adatok

Telekterület: -
Kert mérete: -
Erkély mérete: -
Felszereltség: -
Parkolás: -
Kilátás: utcai
Egyéb extrák:  
-

Hirdető adatai

Hirdető neve: REGION Ingatlaniroda / Region Immo Kft
Kapcsolattartó: Makó Nelly
Hirdető telefonszáma: +36703675768
Honlap: -