Ház
Origó
HázOrigoval pont a központban

Budapest, XIII.kerület


Victor Hugo utca 

Ingatlan adatai

Irányár: 108 900 000 Ft
Típus: lakás (tégla)
Kategória: eladó
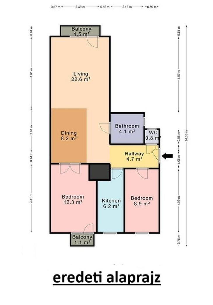
Alapterület: 68 m2
Fűtés: távfűtés
Állapota: felújított
Szobák száma: 2+1
Építés éve: 1941
Szintek száma: -

Részletes leírás

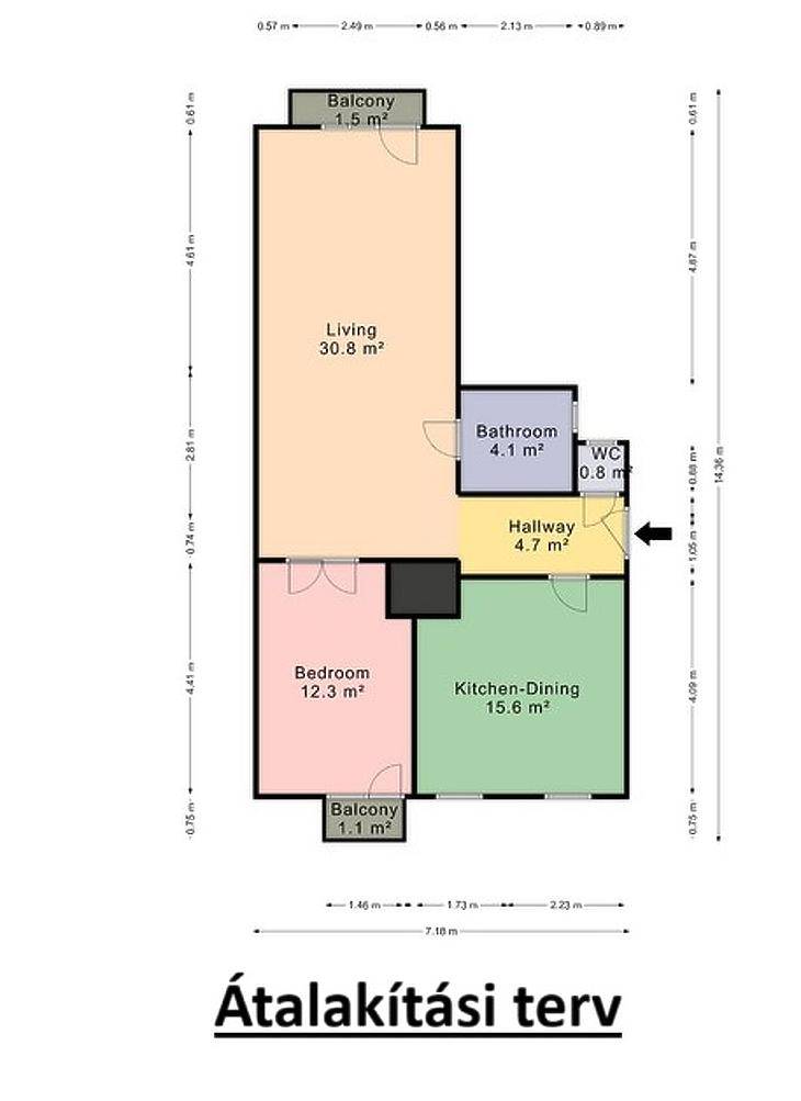
Szent István Parkban eladó egy 2 ERKÉLYES , Bauhaus társas házban, igazi ritkaságnak számító, felújított, első emeleti lakás. Az ingatlan tágas, napfényes nappalijából a utcára nyílik kilátás, míg a hálószobák ablakai és a hozzá kapcsolódó erkély a hangulatos fás belső udvarra néznek, így egyszerre biztosít városi pezsgést és nyugalmat. A lakás elosztása kiváló: két szoba és egy félszoba ad teret a kényelmes mindennapokhoz, a két erkély pedig különleges, ma már ritkán fellelhető értéket képvisel. A távfűtéses otthon stílusos, világos, és igazi polgári hangulatot áraszt. A környék infrastruktúrája kiváló — néhány perc sétára található a Duna-part, kávézók, éttermek, boltok és a Szent István park zöldje — így a városi élet és a nyugodt otthon tökéletes egyensúlyát kínálja. Kérdés, illetve megtekintési szándék esetén hívjon minket bizalommal! Ügyfeleink részére díjmentes, bankfüggetlen hitelügyintézést tudunk kínálni. 

További adatok

Telekterület: -
Kert mérete: -
Erkély mérete: -
Felszereltség: -
Parkolás: -
Kilátás: utcai
Egyéb extrák:  
-

Hirdető adatai

Hirdető neve: MPD Hungary Kft.
Kapcsolattartó: Casa Profitto Nuovo Kft.
Hirdető telefonszáma: +36704147759
Honlap: -