Ház
Origó
HázOrigoval pont a központban

Budapest, VII.kerület


 

Ingatlan adatai

Irányár: 292 500 000 Ft
Típus: lakás (tégla)
Kategória: eladó
Alapterület: 195 m2
Fűtés: gáz (cirko)
Állapota: -
Szobák száma: 6
Építés éve: -
Szintek száma: -

Részletes leírás

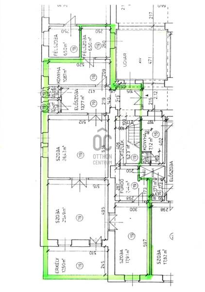
A város egyik legkarakteresebb, századfordulós palotájában kínáljuk megvételre ezt a kivételes hangulatú, több mint százéves építészeti részleteket megőrző, tágas terekkel rendelkező műtermi lakást. Az ingatlan igazi kuriózum: a felső szinten kapott helyet a ház eredeti műterme, amely óriási belmagasságával és monumentális ablakfelületeivel páratlan fényt és atmoszférát biztosít. A napfény gyönyörűen járja be a teret, így alkotói munkához és nagyvonalú nappaliként is tökéletes.LAKÁS - 2. emelet, 195 m² nettó alapterület + 2 db utcai nézetű erkély - Belső kétszintes, a felső szinten található a 48 m²-es műterem monumentális ablakokkal és kiváló fényviszonyokkal- Az alsó szint alapterülete 116m², ezen a szinten található az amerikai konyhás nappali és további 3 szoba + 2 fürdőszoba+WC, továbbá kamra és egyéb helyiségek- Alsó szint belmagassága: 3,9m- Műterem belmagassága: 5,1m- A lakás 2018-ban gépészeti felújításon esett át, minden vezeték és a fűtésrendszer korszerűsítve lett- Közös költség: 53.625 HUF/hó - Fűtése: egyedi cirkó gázfűtés TÁRSASHÁZ- 1898-ban építették eklektikus stílusban, a lakás a villatulajdonos saját lakrésze volt- Eredetileg elegáns panziónak épült, egészen az 1930-as évekig fogadta a vendégeket- A tégla építésű társasház lift nélküli, 14 lakásos- A felújítási - és karbantartási munkálatok rendszeresek, a lakóközösség kultúráltAmennyiben további információra van szüksége, vagy megtekintené az ingatlant, várom hívását, kérem, keressen bizalommal!

További adatok

Telekterület: -
Kert mérete: -
Erkély mérete: 15 m2
Felszereltség: -
Parkolás: -
Kilátás: utcai
Egyéb extrák:  
-

Hirdető adatai

Hirdető neve: Otthon Centrum
Kapcsolattartó: Huga Péter Sándor
Hirdető telefonszáma: +36 70 469 3781
Honlap: -