Ház
Origó
HázOrigoval pont a központban

Pest megye, Áporka


 

Ingatlan adatai

Irányár: 65 000 000 Ft
Típus: ház
Kategória: eladó
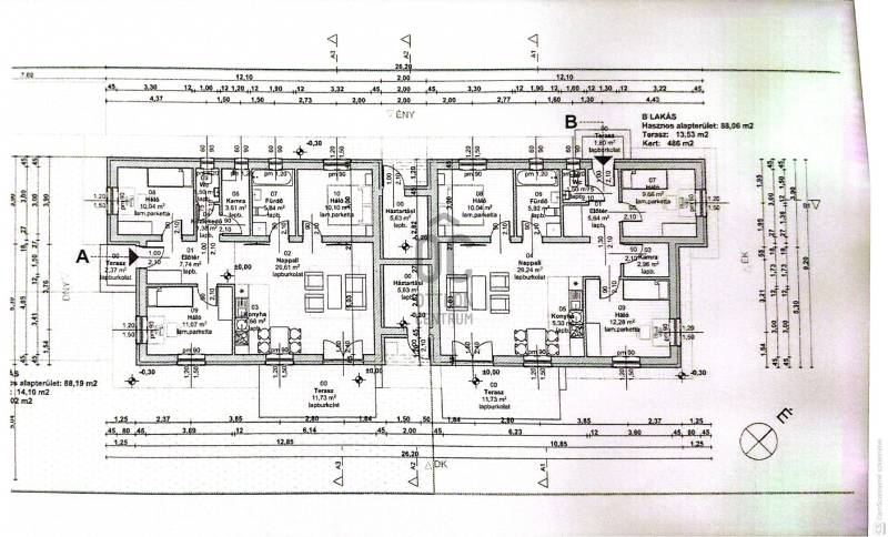
Alapterület: 88 m2
Fűtés: -
Állapota: új
Szobák száma: 4
Építés éve: 2026
Szintek száma: -

Részletes leírás

ÚJ ÉPÍTÉSŰ, ENERGIATAKARÉKOS OTTHON ÁPORKA FEJLŐDŐ LAKÓÖVEZETÉBENNappali + 3 hálószobás, tárolókapcsolatos ikerház – kizárólagos kerthasználattalHa modern, fenntartható és jól átgondolt otthont keres nyugodt környezetben, akkor ez az új építésű ikerház ideális választás! Áporka egyik legújabb, dinamikusan fejlődő részén kínálunk megvételre egy kiváló műszaki tartalommal készülő ingatlant, amely 2026 II. negyedévében kerül átadásra, és még lehetőséget biztosít az egyedi belső kialakításra.Főbb adatokLakótér: 88 m²Elosztás: tágas nappali + 3 külön nyíló hálószobaTerasz: kertkapcsolatos, ideális pihenéshez és családi programokhozTelekrész: 302 m², kizárólagos használatbanTárolókapcsolatos ikerház, nincs közös falÁtadás: 2026 II. negyedévModern műszaki tartalom – alacsony rezsiAz ingatlan kialakításánál elsődleges szempont volt az energiahatékonyság és a hosszú távú fenntarthatóság:Porotherm 30 X-THERM tégla falazat15 cm grafitos hőszigetelésHáromrétegű, hőszigetelt nyílászárókAustrotherm padlószigetelésCellulóz födémszigetelésHőszivattyús fűtési rendszer (padlófűtés + radiátor)Helyiségenkénti termosztátos szabályozásBramac tetőfedés biztonsági fóliázással Az eredmény: kifejezetten alacsony fenntartási költségek, korszerű gépészet, értékálló megoldások.ElhelyezkedésÁporka új, rendezett lakóövezetébenCsendes, családbarát környezetJó megközelíthetőség, fejlődő infrastruktúraIdeális választás azoknak, akik nyugalomra vágynak, mégis elérhető távolságban maradnának a városi szolgáltatásoktólOtthon és befektetés egybenAz ingatlan CSOK Plusz és államilag támogatott hitelek igénybevételével is megvásárolható, így nemcsak kényelmes családi otthon, hanem biztos értékmegőrző befektetés is egy folyamatosan fejlődő térségben. Ne várjon a kereslet csúcsáig!Foglalja le időben új otthonát, és alakítsa saját ízlése szerint.További információért és személyes konzultációért keressen bizalommal!

További adatok

Telekterület: 302 m2
Kert mérete: 302 m2
Erkély mérete: -
Felszereltség: -
Parkolás: -
Kilátás: -
Egyéb extrák:  
-

Hirdető adatai

Hirdető neve: Otthon Centrum
Kapcsolattartó: Gál Jánosné
Hirdető telefonszáma: +36 70 465 7056
Honlap: -