Ház
Origó
HázOrigoval pont a központban

Pest megye, Dunavarsány


 

Ingatlan adatai

Irányár: 99 800 000 Ft
Típus: ház
Kategória: eladó
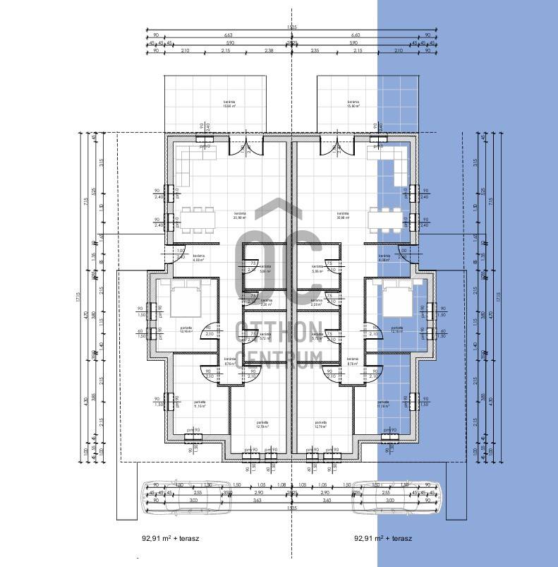
Alapterület: 93 m2
Fűtés: gáz (cirko)
Állapota: új
Szobák száma: 4
Építés éve: 2026
Szintek száma: -

Részletes leírás

Dunavarsány újépítésű ikerház✅️téglaépítésű✅️nettó 93 m2-es✅️amerikai konyhás nappali + 3 hálószobás✅️háztartási helyiség✅️egy fürdőszoba, két wc✅️fűtése: Bosch Condens 2300iW típusú kombi kondenzációs átfolyós fali gázkazán 24kWteljesítménnyel – digitális termosztáttal + PADLÓFŰTÉS✅️külső nyílászárók műanyagok, ötkamráskerettel, háromrétegű hőszigetelő üvegezéssel, argon gázzal töltve - fekete színben✅️választható burkolatok 6.000.-Ft /m2✅️homlokzati hőszigetelés 15cm✅️minden lakáshoz vezetékes víz-, gáz-, és csatornaellátás, valamint egyfázisú 32Aáramerősségű villamos energiaellátás biztosított. Jelenlegi kedvezményes értékesítésünkkeretében az eladási ár magában foglalja a 1x25A áramerősségű „H” tarifa díjszabásúmérőhely kialakítását✅️Az eladási ár tartalmazza a nyílászárókhoz való, beépített redőnytokok ésredőnylefutók árát, redőny lamella és szúnyogháló nélkül.✅️Az eladási ár tartalmazza a hűtő-fűtő hőszivattyús klímaberendezéseket a háromszobában és a nappaliban – rejtett csövezéssel kiépítve, felszerelve ésbeüzemelve.✅️hatalmas közel 16 m2-es terasz✅️7 méter x 3 méter méretű térkővel burkolt parkolóhely kerül kiépítésre✅️ telek 444 m2Opcióként kérhető még:❖ Konyhabútor❖ Konyhafelszerelés❖ Légkondicionáló berendezés kiépítése (jelenlegi ajánlatunk keretébentérítésmentes!)❖ Kapuautomatizálás❖ Vagyonvédelmi eszközök beszerelése❖ Árnyékolástechnika (jelenlegi ajánlatunk keretében a beépített redőnytoktérítésmentes!)❖ Lakberendezési tanácsadás, komplett belsőépítészeti tervezés, kivitelezés❖ Kaputelefon❖ Csapadékvíz szikkasztása❖ Elektromos törölközőszárító❖ Kerti csap❖ Gépkocsi felhajtó térkövezése❖ Gipszkarton álmennyezet elképzelés szerinti kialakítása❖ Járható padlásfödém készítése❖ Zuhanykabin, perem nélküli épített zuhanytálca kialakításaHitel, CSOK, Otthon Start igényelhető.Várható átadás: 2026. május végeMegbízható kivitelező.

További adatok

Telekterület: 444 m2
Kert mérete: 444 m2
Erkély mérete: 16 m2
Felszereltség: -
Parkolás: -
Kilátás: -
Egyéb extrák:  
-

Hirdető adatai

Hirdető neve: Otthon Centrum
Kapcsolattartó: Joó Krisztina
Hirdető telefonszáma: +36 70 469 3111
Honlap: -