Ház
Origó
HázOrigoval pont a központban

Budapest, XI.kerület


Sasad 

Ingatlan adatai

Irányár: 550 000 000 Ft
Típus: ház
Kategória: eladó
Alapterület: 350 m2
Fűtés: egyéb
Állapota: felújított
Szobák száma: 8
Építés éve: 1930
Szintek száma: -

Részletes leírás

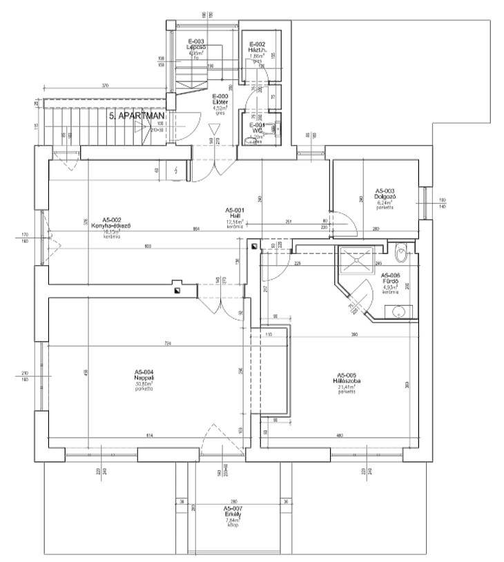
Kizárólag irodánk kínálatában!A XI. kerület közkedvelt részén, Sasadon, a Brassó úton eladásra kínálunk egy teljeskörűen renovált és modernizált villaépületet, amely kiválóan ötvözi az elegáns megjelenést és a korszerű műszaki megoldásokat.A földszinten három kisebb apartman helyiség kapott helyet, melyek külön bejárattal, konyhával, fürdőszobával rendelkeznek, így az ingatlan ideális többgenerációs együttélésre. A emeleti lakószint tágas, világos terekkel fogad. A 30 nm-es nappali ideális közösségi tér lehet, melyet hálószoba, dolgozószoba és étkezős konyha egészít ki. A nappliból nyíló 8 nm-es erkélyről lenyűgöző, panorámás kilátás tárul elénk, amely valódi nyugalmat áraszt.A beépített padlástér tovább növeli az ingatlan értékét: két szoba, két fürdőszoba, egy háztartási helyiség és egy 6 nm-es panorámás erkély került kialakításra, ahonnan a környező zöldövezet látványa minden napszakban különleges élményt nyújt.Az ingatlan szigetelt, korszerű hőszivattyús fűtési rendszerrel felszerelt, így nemcsak esztétikus, hanem energiatakarékos és gazdaságosan fenntartható is. A gondozott telken több gépkocsi számára biztosított a parkolás, a korábbi zárt garázs pedig praktikus irodahelyiséggé került átalakításra. A kert egyik ékköve a külső szauna, amely igazi wellness élményt nyújt a mindennapokban.A környék kiváló infrastruktúrával rendelkezik: néhány percen belül elérhetők üzletek, bevásárlóközpontok, iskolák, óvodák, valamint a tömegközlekedési kapcsolatok is gyors és kényelmes eljutást biztosítanak a belváros irányába. A nyugodt, zöld környezet és a magas színvonalú kialakítás együttese teszi ezt az ingatlant igazán különlegessé és sokoldalúan hasznosíthatóvá. Ideális választás mind otthonnak, mind prémium befektetésnek.További kérdés esetén vagy időpont egyeztetés céljából, keressen minket bizalommal.Az ingatlan banki finanszírozással is megvásárolható, kérje ingyenes konzultációnkat.Vevőink részére a közvetítés díjmentes!

További adatok

Telekterület: 836 m2
Kert mérete: 836 m2
Erkély mérete: -
Felszereltség: -
Parkolás: -
Kilátás: panorámás
Egyéb extrák:  
-

Hirdető adatai

Hirdető neve: MPD Hungary Kft.
Kapcsolattartó: Undici Quartiere Kft
Hirdető telefonszáma: +36703153596
Honlap: -