Ház
Origó
HázOrigoval pont a központban

Budapest, XIII.kerület


 

Ingatlan adatai

Irányár: 200 000 000 Ft
Típus: lakás (tégla)
Kategória: eladó
Alapterület: 70 m2
Fűtés: -
Állapota: -
Szobák száma: 3
Építés éve: 2023
Szintek száma: -

Részletes leírás

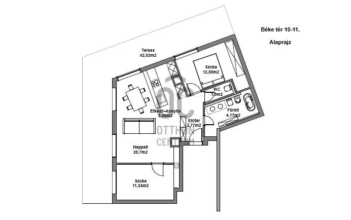
Minden nap ugyanaz a kérdés: miért nem költöztél ide előbb? Üdv itthon!RÖVID ÖSSZEFOGLALÓ Budapest XIII. kerületében, Angyalföld egyik legújabb fejlesztésében, a 2023-ban átadott Béke Residence-ben található ez a 70 m²-es, nappali + két hálós penthouse lakás, 44 m²-es, teljes hosszban futó terasszal és elvehetetlen panorámával a Budai Várra, a Normafára és a Szent László templomra.A 9. emeleti otthon teljesen bútorozott, tehermentes, mennyezeti hűtés–fűtés rendszerrel működik, és azonnal költözhető.A lakáshoz garázs és tároló tartozik, melyek együtt 15 M Ft-ért vásárolhatók meg.A közös költség 34 000 Ft.ELHELYEZKEDÉS – XIII. KERÜLET, BÉKE TÉRAngyalföld ezen része olyan környék, ahol elsőre feltűnik a rendezettség: széles utcák, sok fény, átlátható terek és egyfajta természetes könnyed ritmus, amibe gyorsan beleszeret az, aki itt él. Nem túl zsúfolt, nem túl zajos — inkább olyan, ahol a városi lét előnyei és az otthonos környezet közti egyensúly magától értetődő. A Rákos-patak sétánya pár perces távolságban indul, - mintha a városban nyílna egy rövid, zöld menekülőút: alkalmas egy gyors levegőzésre munka után, egy kis biciklizésre a gyerekekkel, vagy akár egy hétvégi kellemes sétához ebéd után. A Béke téri park és a Rokolya játszótér a helyiek számára biztos pont — ott mindig történik valami, gyerekzsivaj, mozgás, élet.Bevásárlásnál sem kell kompromisszumot kötni: a Lidl, Aldi, Spar, DM vagy Rossmann mind perceken belül elérhetők, a Lehel Csarnok pedig rövid autóúttal kapcsol a város egyik legjobb piacához. A Fáy utcai piac külön fejezet: szombatonként sajátos kerületi hangulat tölti meg, friss termelői áruk és ismerős arcok keverékével.A sportolási lehetőségek kifejezetten jók: a Vasas pályái, a Tichy Lajos Sportcentrum vagy a Kaffka Margit téri szabadtéri fitneszpark mind olyan helyek, amelyek megkönnyítik, hogy a mozgás ne hétvégi projekt legyen, hanem része maradjon a napi ritmusnak.Közlekedni egyszerű: a 14-es villamos két perc séta, és gyorsan összeköt a Váci úttal. A buszjáratok a Westend és a Nyugati felé visznek pár megálló alatt, a Lehel téri metró pedig rövid autóúttal elérhető. Innen elindulni és ide visszaérkezni is könnyű — talán ez az egyik legnagyobb előnye a Béke térnek, hogy minden úgy van közel, ahogy jólesik.AZ ÉPÜLET – MODERN, LETISZTULT, BIZTONSÁGOSA Béke Residence egy friss, modern épület: átgondolt közös terekkel, tágas liftekkel, jól kialakított garázsszinttel és kamerarendszerrel. A homlokzat letisztult, a lépcsőház világos, a lakóközösség igényes. Hangulatos, modern, rendezett ház, fiatalos és értéktartó — jó érzés megérkezni.ÚJ OTTHONOD BELSŐ VILÁGA Már az előszoba is jelzi, hogy itt minden részlet összehangolt. A szürke és kék árnyalatok visszafogott eleganciája végigkíséri az egész lakást, a mozgásérzékelős LED fények pedig diszkrét ritmust adnak a tereknek.A nappali a lakás legnyitottabb pontja: nagy üvegfelületein át folyamatosan érkezik a természetes fény, amely könnyed, levegős hangulatot ad a térnek.Napközben szinte észrevétlenül válik eggyé a lakás a terasszal; a két helyiség közötti átmenet olyan természetesen működik, mintha a külső és belső tér határai elmosódnának.Középen az Olaszországból érkezett pet-proof kanapé áll, első pillantásra is minőségi darab, használat közben pedig pontosan annyira kényelmes, amennyire várnád. Mellette az infinity bárszekrény és a borhűtő tesz hozzá egy visszafogott, mégis karakteres részletet; olyan funkcionális kiegészítők, amelyek idővel válnak az otthon kedvenc pontjaivá.A tárolókapacitás rendkívül erős: 30–40 pár cipő elhelyezésére alkalmas rendszer, ruhaliftes szekrények és több, padlótól plafonig futó beépített gardrób gondoskodik arról, hogy minden rendszerezve maradjon – ezek a megoldások a lakás praktikus oldalát hangsúlyozzák, és hosszú távon is hatalmas előnyt jelentenek. Letisztult, modern hangulat fogad a fürdőben: a nagyméretű szürke burkolatok nyugodt, rendezett hátteret adnak, a fehér szaniterek pedig tiszta kontrasztot teremtenek. A beépített kád kényelmes méretű, fölötte üvegfallal elválasztott zuhanykeret ad praktikus pluszt, így a helyiség két funkciót is gond nélkül kiszolgál.A mosdópult fekete felülete elegáns, a fali tárolók pedig elrejtik a mindennapi eszközöket, ettől marad a tér vizuálisan könnyű. Kényelmes részlet a törölközőszárítós radiátor, amely a hűvösebb napokon gyors melegedést biztosít, a szoba teljes ritmusa pedig olyan átgondolt, hogy könnyű benne elindítani vagy éppen lezárni a napot.A konyhában a TechniStone munkapult stabil, letisztult felülete adja a magabiztos alapot, amely jól bírja a mindennapi rutint. Beépített Bosch gépek dolgoznak csendesen és megbízhatóan, a konyha elrendezése pedig úgy lett kialakítva, hogy tényleg kézre álljon minden.A nappalira nyitott étkező természetes átmenetet képez a terek között; ez az a rész, ahol a napok ritmusában helyet kapnak a gyors reggelik, a nyugodtabb családi vacsorák és az elnyúló esti beszélgetések is.A lakás két hálója külön életet él, még ha nem is azonos mértékben szeparáltak. A terek elrendezése jól átgondolt: az egyik háló a központi nappali folytatása, a másik pedig ettől távolabb, a lakás csendesebb oldalán helyezkedik el. Ez a finom elválás biztosítja, hogy mindkét szoba valódi saját funkciót kaphasson.A nagyobb háló az otthon nyugodtabb, intim részén található. Pasztell árnyalatai miatt meleg és barátságos, a falra helyezett festmény pedig karaktert ad a térnek. A beépített, padlótól plafonig futó szekrények rendezett keretet biztosítanak, a szoba arányai pedig ideálisak ahhoz, hogy akár szülői hálóként, akár gyerekszobaként működjön. Tanulósarok, játékterület vagy nagyobb tárolórendszer is könnyedén elfér benne anélkül, hogy zsúfolttá válna. A fény nem harsány, hanem visszafogottan, lágyan tölti meg a teret.A nappaliból nyíló kisebb szoba teljesen más élményt ad. A mélykék kanapé, a puha párnák és a könnyed textilek otthonos, kuckós hangulatot teremtenek, ami jól illik egy tinédzser-szobához, dolgozószobához vagy vendégszobához is. Közelsége a nappalihoz előny akkor, ha a család szeret egy térben lenni, vagy ha a szoba időszakosan funkciót vált: nappal dolgozósarok, este pihenésre alkalmas hely. A teraszkapcsolat itt is jelen van, a kilátás minden napszakban más hátteret ad, más hangulattal díszítve a teret.Mindkét szoba teljes értékű, jól berendezhető, többféle élethelyzethez könnyen igazítható, és hosszú távon is stabil, használható élettere a lakásnak.PANORÁMÁS TERASZ – 44 M² TÉR, AMI ÁTALAKÍTJA A MINDENNAPOKATElső kilépésre egyértelmű, hogy ez nem egy „szokásos” terasz; inkább olyan, mint egy külső nappali, amit a város látványa tesz teljes egésszé. A 44 m²-es, a lakást körülölelő kültéri tér egyszerre ad helyet a reggeli kávé rutinjának, a nagyobb családi étkezéseknek, a délutáni pihenéseknek – és egy kisebb jacuzzi is kényelmesen elfér rajta.A burkolat világos árnyalata és a matt üvegkorlát elegáns keretet adnak, így a figyelem szinte automatikusan a panorámára irányul. A Budai Vár, a Normafa, a Szent László-templom és a zöld dombok vonala minden napszakban más arcát mutatja: reggel tiszta, határozott kontúrok, estére puhább, rózsaszínes fények – a városnak ez a része kifejezetten látványos a magasból.Ez a terasz nem csupán kiegészítője a lakásnak, hanem önálló lakóterület: egy olyan szelet, ahol a város ritmusa és az otthon csendje találkozik, és ahol könnyű elképzelni, hogyan néz ki itt egy átlagos este vagy egy hétvégi reggel: Van hely a nagy étkezőasztalnak, a függőszéknek, napozóágyaknak, növényeknek, egy kisebb jakuzzinak. MŰSZAKI TARTALOM • alapterület: 70 m² • terasz: 44 m² • nappali + 2 háló • okosotthon vezérlés (redőny, hűtés-fűtés, riasztó) • mennyezeti hűtés-fűtés, huzat- és zajmentes • TechniStone konyhapult • Bosch gépek • közös költség: 34 000 Ft • garázs + tároló: 15 M FtA vételár tartalmazza a beépített gépeket, és berendezéseket, a többi bútor és berendezési tárgy megegyezés tárgyát képezi.Ez a penthouse azoknak szól, akik modern, kényelmes és tartós értékű otthont keresnek. A panoráma, a jól megtervezett belső terek és az új épület és a műszaki felszereltség együtt olyan mindennapi minőséget adnak, amit könnyű megszokni — és nehéz elengedni. Máris beleszerettél, igaz? Ha szeretnéd személyesen is megtapasztalni a lakás atmoszféráját, keress bizalommal időpontért.---------------------------------------------Díjmentes, bankfüggetlen hiteltanácsadással támogatjuk vevő ügyfeleinket a számukra legelőnyösebb finanszírozási döntések meghozatalában. Opcionálisan igénybe vehető kiegészítő szolgáltatásainkkal – mint ügyvédi közreműködés, energetikai tanúsítvány vagy villamos biztonsági felülvizsgálat – teljes körű szakmai támogatást nyújtunk az adásvétel folyamatának minden egyes lépésénél.----------------------------------------------A hirdetésben szereplő információk tájékoztató jellegűek. A tévedés és az árváltoztatás jogát fenntartjuk. Az esetleges elírásokért és technikai hibákért felelősséget nem vállalunk.

További adatok

Telekterület: -
Kert mérete: -
Erkély mérete: 44 m2
Felszereltség: -
Parkolás: -
Kilátás: utcai
Egyéb extrák:  
-

Hirdető adatai

Hirdető neve: Otthon Centrum
Kapcsolattartó: Török Dávid
Hirdető telefonszáma: +36 70 461 9106
Honlap: -