Ház
Origó
HázOrigoval pont a központban

Budapest, VIII.kerület


 

Ingatlan adatai

Irányár: 74 900 000 Ft
Típus: lakás (tégla)
Kategória: eladó
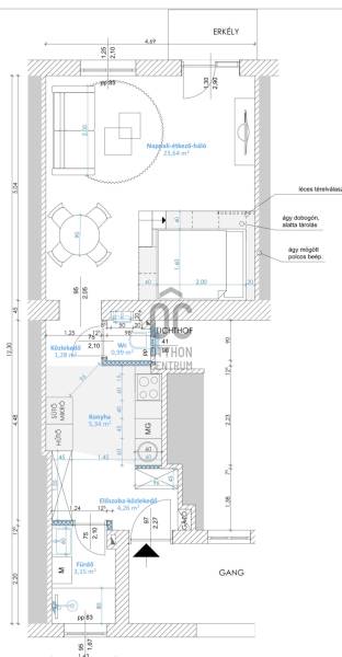
Alapterület: 38 m2
Fűtés: gáz (cirko)
Állapota: -
Szobák száma: 1
Építés éve: 1970
Szintek száma: -

Részletes leírás

Eladó egy magas minőségben felújított belvárosi kislakás! Az ingatlan egy csendes igényes kis utcában található a Corvin Plázától 200 méterre. Egy nagypolgári liftes ház 2. emeletén helyezkedik el nagy ablakokkal utcai nézettel és egy kis hangulatos 3nm-es erkéllyel rendelkezik. Adottságainak hála, nagyon világos, tájolása keleti.A felújítás során cserélve lett a teljes gépészet, csövek, hideg meleg burkolatok az alaprajz pedig úgy került kialakítására,hogy a lehető legjobb legyen a hely kihasználása. A beépített bútorok az ár részét képezik. A háló rész az ágy megemelésével és egy kis térelválasztóval került kialakításra, ami azért is praktikus mert így az ágy alatt egy kis gardrób lett beépítve.Minden szaniter és burkolat nagyon jó minőségű. A képek magukért beszélnek, minden további kérdés esetén hívjanak bátran.Az ingatlan per és tehermentes és azonnal birtokba vehető .

További adatok

Telekterület: -
Kert mérete: -
Erkély mérete: 3 m2
Felszereltség: -
Parkolás: -
Kilátás: utcai
Egyéb extrák:  
-

Hirdető adatai

Hirdető neve: Otthon Centrum
Kapcsolattartó: Huszár Noémi
Hirdető telefonszáma: +36 70 716 8871
Honlap: -