Ház
Origó
HázOrigoval pont a központban

Vas megye, Celldömölk


 

Ingatlan adatai

Irányár: 940 000 000 Ft
Típus: kereskedelmi/ipari ingatlan
Kategória: eladó
Alapterület: 5 278 m2
Fűtés: -
Állapota: -
Szobák száma: -
Építés éve: -
Szintek száma: -

Részletes leírás

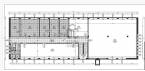
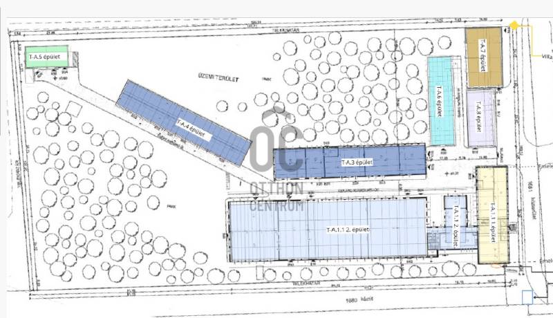
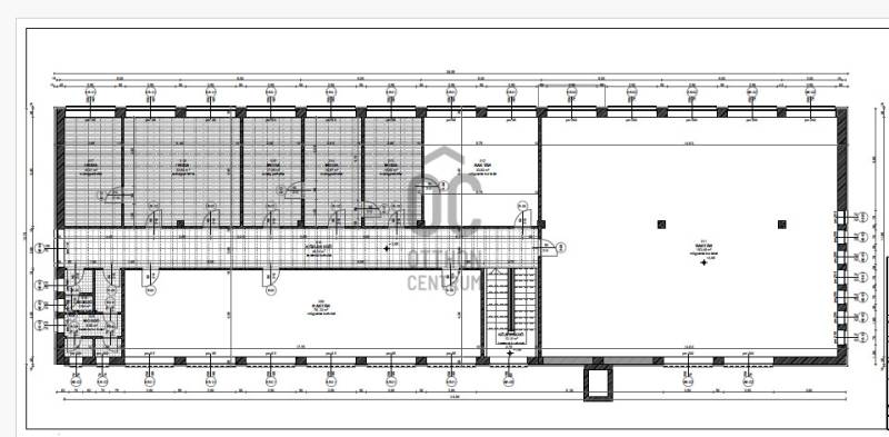
Kiváló infrastruktúrával rendelkező 19.721 m2-es telken található iroda-raktárbázis eladó! A telek közforgalmi úttal teljesen körbejárható, a déli telekhatár mellett vasútvonal húzódik. A telken 8 darab önálló, különféle méretű felépítmény található, melyeket belső úthálózat köt össze.Az épületek közüzemi vízzel, elektromos árammal, vezetékes gázzal, szennyvízcsatorna hálózattal és kiépített tűzivíz rendszerrel vannak ellátva. Összesen 4.859 m2 területű raktár és 1014 m2 irodaterületet áll a területen rendelkezésre. Az épület padlóterhelhetősége 5 tonna/m2, a belmagasság pedig 5 méter.JellemzőkKiváló belföldi és külföldi közlekedési kapcsolatokZárt területTérfigyelő kamerarendszerParkosított környezetSzemélygépkocsi parkolókMűszaki jellemzőkPadlóterhelhetőség: 5 t/m2Belmagasság: 5 mKözüzemi fogyasztási almérők19721 m2 telekterület8 felépítmény a területenTeljes felépítmény méret: 5278 m2Lokáció834-es, 84-es, E66-os főútBudapest: 150 kmAusztria: 60 kmTelekterület: 19721 m2Épületek össz területe: 5278 m2Ár: 940 millió Ft + Áfa

További adatok

Telekterület: -
Kert mérete: -
Erkély mérete: -
Felszereltség: -
Parkolás: -
Kilátás: -
Egyéb extrák:  
-

Hirdető adatai

Hirdető neve: Otthon Centrum
Kapcsolattartó: Demeter András
Hirdető telefonszáma: +36 70 716 9611
Honlap: -