Ház
Origó
HázOrigoval pont a központban

Budapest, III.kerület


 

Ingatlan adatai

Irányár: 2 300 000 Ft/hó
Típus: kereskedelmi/ipari ingatlan
Kategória: kiadó
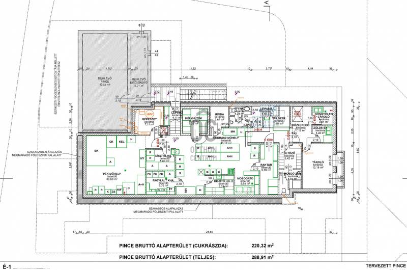
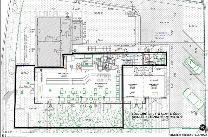
Alapterület: 353 m2
Fűtés: -
Állapota: -
Szobák száma: -
Építés éve: -
Szintek száma: -

Részletes leírás

Kiadó hosszú távra III. kerületben bejáratott cukrászda, mely egy 133 nm eladótérből, egy 220 nm műhelyből áll.A földszinten lévő kb 133 nm eladótérhez külön női, férfi és mozgássérült wc, valamint egy külső szeméttároló helység is tartozik.A pultrendszer mellett étellift, belső kamera és biztonsági rendszer is ki lett alakítva.Az üzlet előtt nagy teraszos kerthelyiség is megtalálható, használható.A műhelyek a kor igényeinek megfelelő felszereltséggel lettek kialakítva, mely a teljesség igénye nélkül:- 1,5 éves komplett olasz konyhai gépsor (pl.pizza kemence, pizza dagasztó, kelesztő, tésztafőzők, olajsütők, rostlap, kombi sütő, gőzpároló, kalapos mosogató, hűtő asztalok),- eladó térben újszerű Dublino berendezés,- R keeper rendszer,- 20-90l méretben keverő, habverő, dagasztó gépek, forgókemence, csomagológép- Carpigiani 40/60 DGT Labotronic,- Carpigiani pasztörizáló, sokkoló, fagyasztók, hűtők, fagyasztó kamra.A hűtéséről, fűtéséről egyedi mérésű fan-coil rendszer gondoskodik, friss levegő utánpótlást az elektromos ablakokon kívül az épület hővisszanyerő szellőzőrendszere biztosít.Az udvarban az egész ház részére (étterem + a mellette lévő üzlethelyiség) összesen 6 zárt gépkocsibeálló, míg az épület előtt további parkolási lehetőségek állnak rendelkezésre.Az ár nettó ár, további ÁFA terheli.Bármi kérdéssel kapcsolatban állok rendelkezésére!

További adatok

Telekterület: -
Kert mérete: -
Erkély mérete: -
Felszereltség: -
Parkolás: -
Kilátás: -
Egyéb extrák:  
-

Hirdető adatai

Hirdető neve: Otthon Centrum
Kapcsolattartó: Heim Dávid
Hirdető telefonszáma: +36 70 412 5811
Honlap: -