Ház
Origó
HázOrigoval pont a központban

Budapest, XXI.kerület


 

Ingatlan adatai

Irányár: 60 900 000 Ft
Típus: lakás (panel)
Kategória: eladó
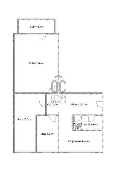
Alapterület: 62 m2
Fűtés: távfűtés
Állapota: -
Szobák száma: 3
Építés éve: 1987
Szintek száma: -

Részletes leírás

Eladó Csepelen, Csillagtelep közkedvelt, zöldövezeti részén egy napfényes, 62 m²-es, erkélyes, 2+1 szobás, jó állapotú panellakás – alacsony rezsivel, rendezett házban!A lakás egy négyemeletes, folyamatosan karbantartott társasház legfelső szintjén található, mindkét irányba zöldre néző, kellemes kilátással és kiváló benapozottsággal.A keleti fekvésű konyha és két szoba, valamint a nyugati tájolású nappali miatt a lakás egész nap világos és élhető.Főbb jellemzők:-62 m², jól kialakított alaprajz-6 m2 erkély, 20 m² feletti nappali (nyugati tájolás, napellenző)-12 m²-es hálószoba-6,3 m²-es félszoba-Ablakos konyha, beépített bútorokkal-Felújított, zuhanyzós fürdő, külön WC-Tágas előszoba nagy beépített szekrénnyel-Fa nyílászárók, a keleti oldalon redőnnyel és szúnyoghálóval-A nyugati oldalon szúnyogháló + az erkélyen napellenző-Egy éves klíma a nappaliban-Távfűtés-Burkolatok: két szoba parkettás, egy szoba szőnyeges, a többi helyiség járólapos-Több ponton záródó, biztonsági bejárati ajtó-Nagy méretű saját tároló + közös tárolókA társasház:-Rendezett, rendszeresen karbantartott épület-Frissen felújított lépcsőház (burkolat + festés)-Stabil anyagi háttér, tartalékkal-Nyugodt, biztonságos környezet sok zölddelKöltségek és parkolás:-Közös költség: 12 000 Ft-Parkolás ingyenes a ház előttInfrastruktúra:-Kiváló közlekedés-A közelben: több iskola, óvoda, üzletek, orvosi rendelő, gyógyszertár, játszóterek-Családbarát, élhető környékTulajdoni viszonyok:-1/1 tulajdon-Tehermentes

További adatok

Telekterület: -
Kert mérete: -
Erkély mérete: 6 m2
Felszereltség: -
Parkolás: -
Kilátás: utcai
Egyéb extrák:  
-

Hirdető adatai

Hirdető neve: Otthon Centrum
Kapcsolattartó: Beck Zita
Hirdető telefonszáma: +36 70 388 5726
Honlap: -