Ház
Origó
HázOrigoval pont a központban

Zala megye, Hévíz


 

Ingatlan adatai

Irányár: 79 900 000 Ft
Típus: ház
Kategória: eladó
Alapterület: 195 m2
Fűtés: -
Állapota: -
Szobák száma: 8
Építés éve: 1960
Szintek száma: -

Részletes leírás

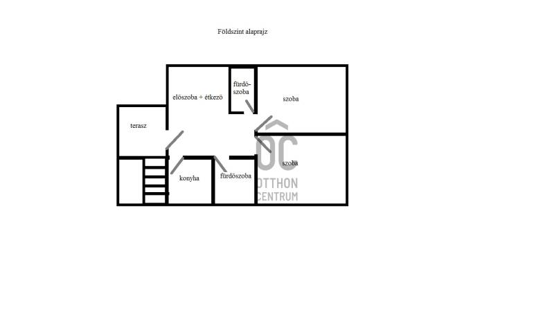
Az ingatlan főbb jellemzői:- a családi ház nagysàga: 195 m2- a telek mérete: 560 m2- az ingatlan Hévíz frekventált részén helyezkedik el - külső nyílászárók: műanyag- fűtése: házközponti, gáz(kazán) - klíma rendelkezésre áll- akár bútorozottan, azonnal költözhető- önálló garázzsal rendelkezik, mely szintén a vételár részét képezi- az ingatlan tehermentes- szintenként külön bejárattal rendelkezik, így több generáció számára is kitűnő választásAmennyiben az ingatlan felkeltette érdeklődését, hívjon bizalommal!

További adatok

Telekterület: 560 m2
Kert mérete: 560 m2
Erkély mérete: 20 m2
Felszereltség: -
Parkolás: -
Kilátás: -
Egyéb extrák:  
-

Hirdető adatai

Hirdető neve: Otthon Centrum
Kapcsolattartó: Horváth Anita
Hirdető telefonszáma: +36 70 412 3361
Honlap: -