Ház
Origó
HázOrigoval pont a központban

Hajdú-Bihar megye, Debrecen


 

Ingatlan adatai

Irányár: 222 000 000 Ft
Típus: ház
Kategória: eladó
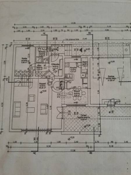
Alapterület: 230 m2
Fűtés: egyéb
Állapota: -
Szobák száma: 7
Építés éve: 2004
Szintek száma: -

Részletes leírás

Eladó Debrecen belvárosában, a Fórum közelében egy csendes utcában ez a lenyűgöző, 2004. évben épült, 2017. évben felújított 3 szintes, szigetelt ingatlan, amely tökéletes választás lehet családok számára. Az ingatlan egy 230 nm alapterületű ház, amelyből 194,70 nm a lakórész, 31,08 nm pedig gépkocsitároló. A ház falazata Porotherm 30 NF tégla, a homlokzatra 6 cm-es Baumit lélegző szigetelés került. A családi ház egy 280 nm-es telken helyezkedik el és minden igényt kielégítő életteret biztosít. Az ingatlanban összesen 7 szoba található, melyek között a tágas nappali kiemelkedik, ideális helyszínt biztosítva a családi összejövetelekhez és baráti találkozókhoz. Az ingatlan négy fürdőszobával rendelkezik ( a tetőtérben is kialakításra került egy) így a nagycsaládosok számára is kényelmes megoldást nyújt. A házhoz tartozó 12,6 nm-es terasz , a 3,59 nm-es erkély és a 6,30 nm-es loggia pedig lehetőséget biztosít a pihenésre és a szabadban való időtöltésre. A garázsban két autó parkolása is megoldható, amely különösen praktikus a belvárosi környezetben. A ház modern fűtési rendszerrel rendelkezik, amely gáz alapú fan-coil megoldással működik, míg a mennyezethűtés nyáron biztosítja a kellemes hőmérsékletet. Emellett a padlófűtés is van a házban. A lakásban található beépített bútorok és szekrények, valamint a LED hangulatvilágítás és motoros redőnyök mind hozzájárulnak a modern, kényelmes életvitelhez. A házban magas minőségű gépesített konyhabútor található , központi porszívó is beszerelésre került. A tetőtér engedéllyel történt átalakítása során saját konyha saját fürdőszoba és nappali került kialakításra, amely így akár külön lakrészként is funkcionálhat.Az ingatlan biztonságát riasztórendszer garantálja, míg a rendezett kert és az automata öntözőrendszer a szabadidő kellemes eltöltését segíti elő. A környék ellátottsága kiváló, hiszen Belváros közelsége miatt az üzletek, éttermek és szolgáltatások pár perces sétával elérhetők. A közlekedés szempontjából is ideális helyen helyezkedik el, hiszen a város tömegközlekedési lehetőségei kitűnőek, így a mindennapi közlekedés egyszerű és gyors. A belváros csendes, biztonságos utcái pedig ideális környezetet biztosítanak a nyugodt életvitelhez. Az ingatlanpiac folyamatosan változik, így érdemes mihamarabb lépni, hogy ne maradjon le erről a remek lehetőségről!További kérdésekkel és megtekintési időponttal kapcsolatban várjuk hívását a hét minden napján!

További adatok

Telekterület: 280 m2
Kert mérete: 280 m2
Erkély mérete: 23 m2
Felszereltség: -
Parkolás: -
Kilátás: -
Egyéb extrák:  
-

Hirdető adatai

Hirdető neve: Otthon Centrum
Kapcsolattartó: Dr. Nagy Erika
Hirdető telefonszáma: +36 70 461 9076
Honlap: -