Ház
Origó
HázOrigoval pont a központban

Pest megye, Hernád


 

Ingatlan adatai

Irányár: 14 500 000 Ft
Típus: telek
Kategória: eladó
Alapterület: 1 000 m2
Fűtés: -
Állapota: -
Szobák száma: -
Építés éve: -
Szintek száma: -

Részletes leírás

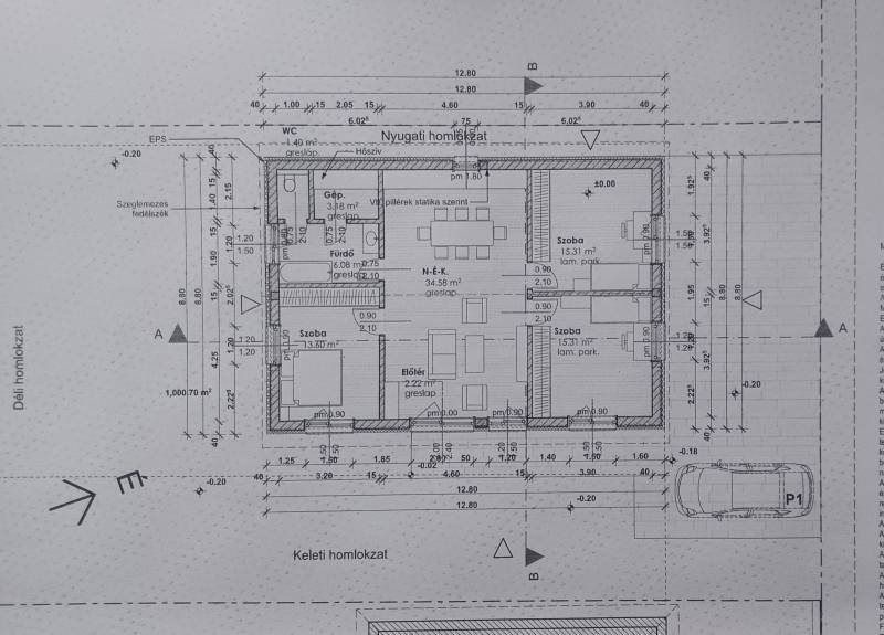
Eladó építési telek elkezdett építkezéssel és háztervrajzzal Hernádon!Hernád csendes, barátságos utcájában eladó egy 1000 m²-es építési telek, amely ideális választás lehet mindazok számára, akik saját igényeik szerint szeretnék megvalósítani álomotthonukat. A telek főbb jellemzői:Elkezdett építkezés: kész sávalapHáz tervrajza rendelkezésre állFúrt kút, 63 méter mélyVíz és csatorna bekötés megigényelve (a további ügyintézés az új tulajdonos feladata)Áram a telek előtt megtalálhatóUtcafronti kerítés félkész állapotban: 4 méteres úszókapu nyílás + kiskapuOldalkerítéshez szükséges alapanyag  (drótháló) rendelkezésre állGeodétával kiméretett telekÉpítőanyagokkal együtt eladó:A telek része a ház felépítéséhez szükséges nagy mennyiségű építőanyag, többek között:30-as Ytong falazóelemekVálaszfal elemekElhelyezkedés és környék:A környék rendkívül nyugodt, csendes, barátságos szomszédokkal.Budapest mindössze kb. 20 perc alatt elérhető autóval, az M5-ös autópálya irányából — ideális választás azok számára, akik szeretnének a főváros közelében, mégis vidéki nyugalomban élni.Gáspár Kata 06-20 400-4035

További adatok

Telekterület: 1 000 m2
Kert mérete: -
Erkély mérete: -
Felszereltség: -
Parkolás: -
Kilátás: -
Egyéb extrák:  
-

Hirdető adatai

Hirdető neve: Dabas Régió
Kapcsolattartó: Gáspár Kata
Hirdető telefonszáma: 06204004035
Honlap: -