Ház
Origó
HázOrigoval pont a központban

Pest megye, Hernád


 

Ingatlan adatai

Irányár: 79 990 000 Ft
Típus: ház
Kategória: eladó
Alapterület: 107 m2
Fűtés: -
Állapota: új
Szobák száma: 4
Építés éve: 2025
Szintek száma: -

Részletes leírás

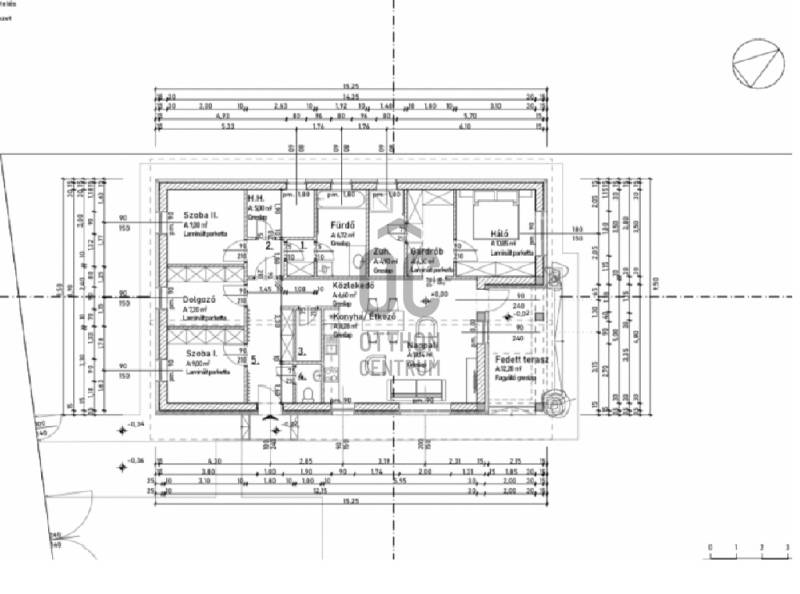
Hernádon eladó új építésű, modern családi ház fedett terasszal.Hernád csendes, családias részén kínálunk megvételre egy 107 m², új építésű családi házat, amely kiváló elrendezésével és igényes kialakításával minden igényt kielégít.Az ingatlan tágas nappali–étkezővel, három külön nyíló szobával, valamint egy külön gardróbszobával rendelkezik. A mindennapi kényelmet tovább növeli a két modern fürdőszoba, amelyek praktikus megoldást nyújtanak nagyobb családok számára is.A nappaliból kilépve egy 12 m²-es fedett terasz vár, amely tökéletes helyszín pihenéshez vagy baráti összejövetelekhez.A ház modern építési megoldásokkal, energia hatékony kivitelezéssel készült, így hosszú távon is ideális választás lehet minden korosztály számára.Lokáció: Csendes családbarát utca,óvoda, bölcse, iskola,orvosi rendelő ,boltok a közelbenKözlekedés: Rendszeres autóbuszjárat Népliget PályaudvaraMegtekintéssel kapcsolatban várom megtisztelő hívását.

További adatok

Telekterület: 1 002 m2
Kert mérete: 1 002 m2
Erkély mérete: 12 m2
Felszereltség: -
Parkolás: -
Kilátás: -
Egyéb extrák:  
-

Hirdető adatai

Hirdető neve: Otthon Centrum
Kapcsolattartó: Lajáné Baranyi Márta
Hirdető telefonszáma: +36 70 716 9986
Honlap: -