Ház
Origó
HázOrigoval pont a központban

Pest megye, Pilisjászfalu


 

Ingatlan adatai

Irányár: 135 092 900 Ft
Típus: ház
Kategória: eladó
Alapterület: 108 m2
Fűtés: -
Állapota: új
Szobák száma: 4
Építés éve: 2026
Szintek száma: -

Részletes leírás

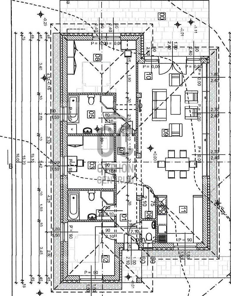
Fedezze fel álmai otthonát Pilisjászfalu szívében - új ház, új lehetőségek!PILISJÁSZFALU belterületén csendes erdős részén a Somlyó-völgyi lakóparkban, megfizethető földszintes CSALÁDI HÁZ eladó 2026 JÚNIUSI átadással. ( Ez a ház 108nm+ 26 NM TERASZ )Jelenleg 75%-s készültségi fokban áll. Még a szaniterek, belső nyílászárók, burkolatok választhatóak!!! 108 nm CSALÁDI HÁZ :- nappali-konyha-étkező 43,31 nm- hálószoba 10,42nm- hálószoba 10,27 nm- hálószoba 18,33- fürdőszoba 7,8nm- közlekedő 5,01nm- közlekedő 4,5nm- fürdőszoba 5,69- műanyag nyílászárók- teraszra nyíló ajtó a nappaliból és a hálószobából- 26,14 nm fedett terasz- Délnyugati fekvésű- panoráma a kertből és a nappaliból- sarok telek- a telek 925 nm A házak leköthetők lakásvásárlási szerződéssel, OTTHON START PROGRAMMAL IS HITELEZHETŐ!Energetikai besorolása \"AA\"-kerítés kérhető felárral-Akadálymentesítés választható.AZ ALAPÁR NEM TARTALMAZZA ! :- A megújuló energiához hálózatbővítés szükséges: 43 Amper- 2,9 kwp napelem 1,5 millió Ft, több Kwp kérhető- kerti csap- padlásfeljáró- padlófűtés 10000 Ft/nm Műszaki leírás:- Az épület sáv alapozással épül, 30-as N+F kerámia falazó blokkból, készülnek.- 15 cm-es szigetelés, hőszigetelő vakolati rendszerrel kiegészítve, fehér színű dörzsölt nemes vakolattal- Válaszfalak 10-es téglából- Tetőfedés \"Terran\" cserépfedés sötétbarna árnyalatú cseréppel- Víz-hang és hőszigetelés a megfelelő vastagságban.- Külső nyílászárók háromrétegű üvegezéssel, hőhídmentes műanyag.- teraszajtó középen felnyíló kétszárnyú ajtó-bejárati ajtó acélszerkezetes biztonsági ajtó.- A külső belső párkányok fehér műanyagok.- belső ajtók tetszés szerint választhatók , hozzátartozó kilinccsel, nyitási irányokkal ( 60 ezer Ft értékben)- bádogos szerkezet Ereszcsatornák a tetőn elhelyezett bádogos szerkezetek \" Trifa\" -ból vagy azonos minőségű anyagból készülnek.-Fűtés radiátoros ,de az energiatakarékosság miatt a padlófűtés a javasolt! Padlófűtést extra költséggel kérhető (10 000 Ft/ nm )- szaniterek lakásonként 500 ezer Ft értékben választhatók, ebbe beletartozik a \"Grohe\" típusú beépített tartály,( melynek értéke 35 ezer Ft )- Elektromosság 1*32 A- A lakásokban elektromos tűzhely csatlakozást biztosítunk.- Audio kaputelefon kiállás, riasztó, telefon, kábel tv csövezése előkészítése az árban valamint a a lakásban és a teraszon a lámpatestek csatlakozásának kiépítését a kivitelező vállalja.- Konnektorok, kapcsolók, csatlakozások \"Legrand típusú\" vagy azonos minőségű fehér színben.- Festés kétrétegű diszperzites festéssel kerülnek átadásra. ( az eladó által megjelölt lehetőségek közül a vevő által kiválasztott pasztell színekben.)- napelem előkészítés kérhető- A lakásokon belül a burkolat bruttó 6000Ft -ig választható 60*60 cm lapméretig.- A nappalikban, szobákban laminált parketta és hidegburkolat egyaránt választható.- A teraszok 10*20 parkett térkőből lesz burkolva .- AKADÁLYMENTES lakás kialakítása kérhető!-kerti csap ajánlott és kérhető-padlásfeljáró ajánlott és kérhető- hőszivattyú BOSCH típusúA telek elhelyezkedésétől, és a telek nagyságától az alapár változhat!#PILISJÁSZFALU #újépítésűház #megfizethetőár #otthonstartprogram #babaváró hitel#CSOKigénybevétel#

További adatok

Telekterület: 925 m2
Kert mérete: 925 m2
Erkély mérete: 26 m2
Felszereltség: -
Parkolás: -
Kilátás: -
Egyéb extrák:  
-

Hirdető adatai

Hirdető neve: Otthon Centrum
Kapcsolattartó: Soproni Brigitta
Hirdető telefonszáma: +36 70 716 8491
Honlap: -