Ház
Origó
HázOrigoval pont a központban

Budapest, XV.kerület


 

Ingatlan adatai

Irányár: 135 200 000 Ft
Típus: lakás (újépítésű)
Kategória: eladó
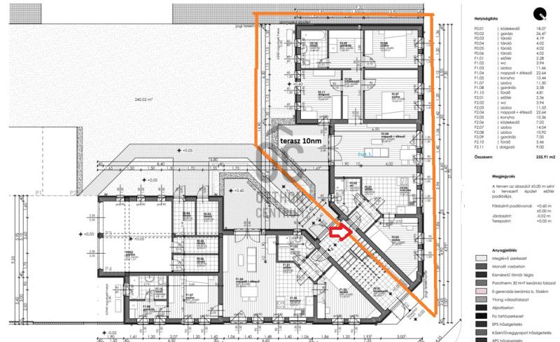
Alapterület: 104 m2
Fűtés: -
Állapota: új
Szobák száma: 4
Építés éve: 2026
Szintek száma: -

Részletes leírás

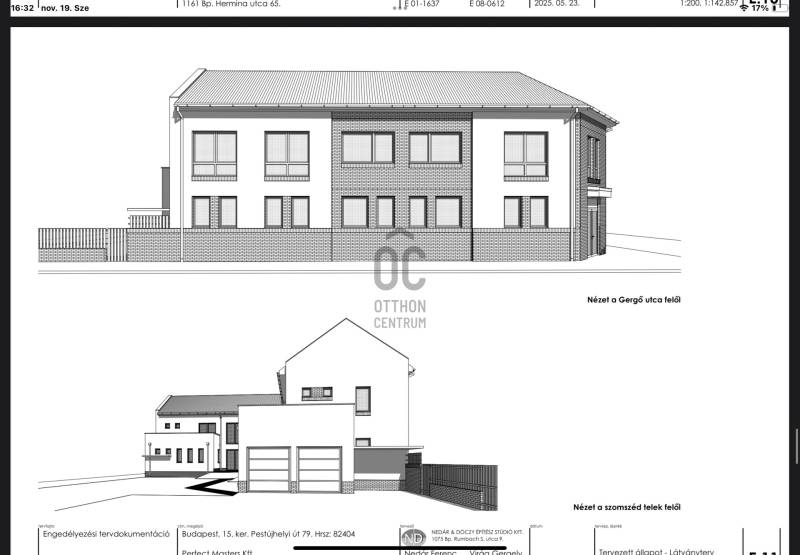
104 m²-es Prémium Kertkapcsolatos Lakás Pestújhelyen – Modern Gépészet + Extra Csend + TeraszA modern életstílus kedvelőinek tökéletes választás ez a 104,27 m²-es, új építésű, prémium kivitelezésű lakás Budapest 15. kerületének egyik legértékesebb részén, Pestújhely csendes, kertvárosias utcájában.Az ingatlan kiváló választás középkorú családok számára, akik egy tágas, világos, kényelmes és magas műszaki tartalommal rendelkező otthont keresnek.✨ Prémium műszaki tartalom – kompromisszummentes kényelemModern gépészet – egész éves komfortHőszivattyús padló- és mennyezetfűtésMennyezethűtés + fan-coil rendszerAriston okos melegvíz-rendszerAA–B energetikai besorolás → alacsony rezsi, környezettudatos működésMagas minőségű építőanyagok3 rétegű VEKA nyílászárók – kiváló hő- és hangszigetelés12 cm Dryvit homlokzati szigetelés + 25 cm tetőtéri szigetelésSilka hanggátló falak → páratlan csend és nyugalomElegáns, modern burkolatok és beltéri ajtókLetisztult, modern építészeti megjelenésA lakás kiváló alaprajzzal rendelkezik:Tágas, világos nappaliAmerikai konyhás étkező – a családi élet központja4 teljes értékű szoba – gyerekeknek, dolgozónak vagy vendégszobának10 m²-es privát terasz , amely kiváló helyszín egy reggeli kávéhoz, pihenéshez vagy akár baráti grillpartihoz.Közvetlen kertkapcsolat – nyugalom, természet, friss levegőAkadálymentes kialakításA lakás Budapest egyik legjobb kertvárosi részén található :Kiváló környék – kertvárosi nyugalom a város közelségébenÉttermek, boltok, szolgáltatások pár perc sétáraKiváló tömegközlekedés → gyors belvárosi elérésBiztonságos, csendes, rendezett utcaA lakáshoz tartozik egy garázs vagy felszíni autóbeálló (8 M Ft / 4 M Ft) és egy 4 m²-es, 2,5 M Ft-os külön tároló, melyek a vásárlás kötelező elemei.Az ingatlan hitellel is megvásárolható, rugalmas fizetési ütemezéssel.Az átadás várható időpontja: 2026 utolsó negyedéve.Zugló közelsége tovább növeli a lokáció értékétTehermentes, értékálló ingatlan – stabil befektetésPestújhely folyamatosan fejlődő környék, a prémium műszaki tartalom pedig hosszú távon is értéket ad.Ez a lakás nemcsak ideális otthon, hanem biztos befektetés is.Ha szeretnéd személyesen is megnézni, vagy kérdésed van a lakásról, finanszírozásról vagy vásárlási folyamatról, örömmel segítek.A folyamat lehet izgalmas és egyszerű — gondoskodom róla, hogy minden információt megkapj a legjobb döntéshez.

További adatok

Telekterület: -
Kert mérete: -
Erkély mérete: 11 m2
Felszereltség: -
Parkolás: -
Kilátás: utcai
Egyéb extrák:  
-

Hirdető adatai

Hirdető neve: Otthon Centrum
Kapcsolattartó: Krasznai Izabella
Hirdető telefonszáma: +36 70 388 5056
Honlap: -