Ház
Origó
HázOrigoval pont a központban

Hajdú-Bihar megye, Debrecen


 

Ingatlan adatai

Irányár: 78 900 000 Ft
Típus: lakás (tégla)
Kategória: eladó
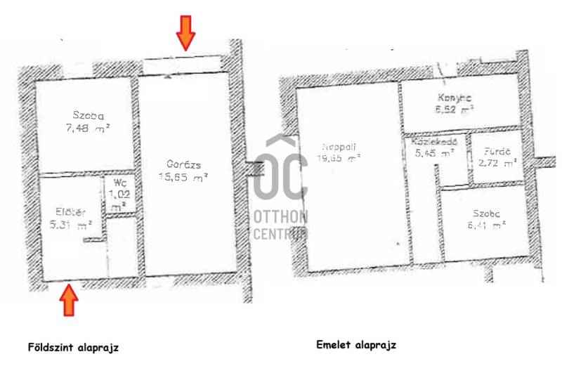
Alapterület: 55 m2
Fűtés: gáz (cirko)
Állapota: -
Szobák száma: 3
Építés éve: 1980
Szintek száma: -

Részletes leírás

Eladó a Nagyerdő egyik legkeresettebb részén egy földszinti, kétszintes, téglaépítésű lakás közvetlen garázzsal (+13 M Ft). A környék adottságai, az egyetem és a turisztikai látványosságok közelsége miatt kiemelkedően keresett rövid távú szállásként.A lakás jelenleg Airbnb-ként üzemel, stabil kihasználtsággal, ami a vételár kb. 10 éves megtérülést biztosítja. A szigetelés, redőnyös műanyag nyílászárók, klíma és gázcirkó fűtés alacsony fenntartási költségek mellett teszik működtethetővé.A befektetés előnyei:- Nagyerdei lokáció – ritka kínálat, folyamatos kereslet- Rendezett, zárt udvaros társasház- Garázs a lakással együtt (külön értéket képvisel)- Közvetlen közelben villamos, Coop, éttermek, turisztikai pontokBiztos, értékálló és könnyen kiadható ingatlan — akár rövid, akár hosszú távra.

További adatok

Telekterület: -
Kert mérete: -
Erkély mérete: -
Felszereltség: -
Parkolás: -
Kilátás: kertre néző
Egyéb extrák:  
-

Hirdető adatai

Hirdető neve: Otthon Centrum
Kapcsolattartó: Némethné Zsuzsa
Hirdető telefonszáma: +36 70 412 3861
Honlap: -