Ház
Origó
HázOrigoval pont a központban

Nógrád megye, Diósjenő


 

Ingatlan adatai

Irányár: 299 000 000 Ft
Típus: kereskedelmi/ipari ingatlan
Kategória: eladó
Alapterület: 955 m2
Fűtés: -
Állapota: -
Szobák száma: -
Építés éve: -
Szintek száma: -

Részletes leírás

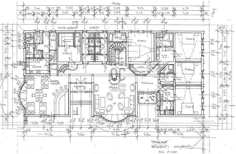
Kivételes lehetőség, kivételes környezetben! Diósjenő csendes, de mégis könnyen megközelíthető részén, Budapesttől 60km-re kínálunk eladásra egy 955 négyzetméteres ingatlant, amely főépülete 540 négyzetméter, amihez tartoznak külön épületek, egy rendkívül nagy beépített terasz és jelenleg panzióként üzemel, de számos más funkcióra is alkalmas lehet. Az épület 2004-ben épült és 11db kádas, zuhanyzós, szoba helyezkedik el benne, néhányhoz teakonyha is. A földszinten egy gyereksarok, recepció, társalgó billiárdasztallal, pince, bárrész, egy 60 fő befogadására alkalmas étkező kapott helyet. A konyha 2023-ban került felújításra, teljesen gépesített. A telek mérete 8600 négyzetméter, így bőséges teret biztosít a vendégek kényelmének és a különböző szolgáltatások bővítésének. Az ingatlan jó állapotú, folyamatosan karbantartott, fűtése gázkazánnal biztosított, illetve a közösségi terekben padlófűtés is beépítésre került, így a téli hónapokban is kellemes környezetet nyújt a látogatóknak. Az ingatlan különlegessége a saját tóra néző kilátás, amely nemcsak a vendégek számára vonzó, hanem a helyi üzleti lehetőségek szempontjából is kiemelkedő. A rendezett kert nemcsak esztétikai szempontból remek, hanem lehetőséget biztosít szabadtéri programok szervezésére is. Itt található egy 158 négyzetméteres, saját bárpulttal ellátott szaletli, amely 120 vendég befogadására alkalmas, tökéletes rendezvények, esküvők megtartására. A környék adottságai is figyelemre méltóak. Diósjenő nyugodt, csendes település, ahol a természet közelsége és a friss levegő garantálja a pihenést. A közlekedési lehetőségek is kedvezőek: az ingatlan könnyen megközelíthető autóval, és a közeli településekhez való kapcsolódás is egyszerű. A tömegközlekedési lehetőségek, mint például buszjáratok és vonat rendszeresen közlekednek, így a vendégek számára is könnyen elérhetőek a környező látnivalók. Ez az ingatlan nem csupán egy hely, hanem lehetőség arra, hogy egy sikeres üzleti vállalkozást indítson vagy bővítsen. A jelenlegi panzió funkció mellett számos más lehetőség is kínálkozik, mint például vendégház, szálláshely, idősek otthona, vagy akár rendezvényhelyszín kialakítása. Az ingatlan adottságai és a környék vonzereje együttesen biztosítják a sikeres működést. Bármilyen kérdése merülne fel az ingatlannal kapcsolatban, bizalommal kereshet, szívesen állok rendelkezésére.Díjmentes, bankfüggetlen hiteltanácsadással támogatjuk vevő ügyfeleinket a számukra legelőnyösebb finanszírozási döntések meghozatalában. Opcionálisan igénybe vehető kiegészítő szolgáltatásainkkal – mint ügyvédi közreműködés, energetikai tanúsítvány vagy villamos biztonsági felülvizsgálat – teljes körű szakmai támogatást nyújtunk az adásvétel folyamatának minden egyes lépésénél.

További adatok

Telekterület: -
Kert mérete: -
Erkély mérete: -
Felszereltség: -
Parkolás: -
Kilátás: -
Egyéb extrák:  
-

Hirdető adatai

Hirdető neve: Otthon Centrum
Kapcsolattartó: Ölvedi Péter
Hirdető telefonszáma: +36 70 469 3656
Honlap: -