Ház
Origó
HázOrigoval pont a központban

Pest megye, Vácrátót


 

Ingatlan adatai

Irányár: 89 500 000 Ft
Típus: ház
Kategória: eladó
Alapterület: 89 m2
Fűtés: -
Állapota: új
Szobák száma: 5
Építés éve: 2026
Szintek száma: -

Részletes leírás

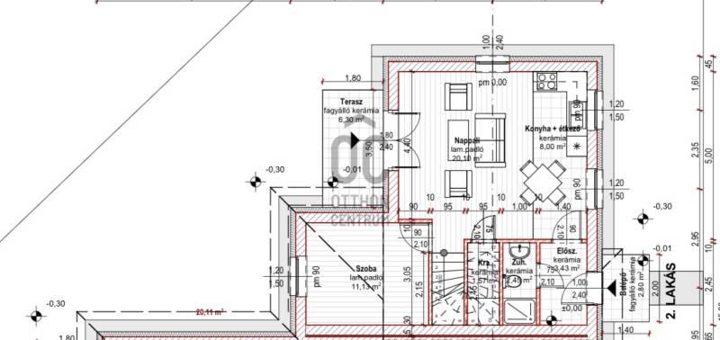
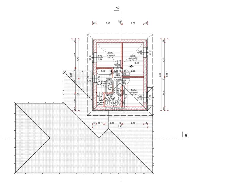
Újépítésű ikerház Vácrátóton, az Alborétum Lakóparkban!A 88,5 m²-es, kétszintes otthon átgondolt elrendezéssel és tágas terekkel várja leendő tulajdonosát. Négy hálószoba és két fürdőszoba biztosítja a család kényelmét, a nagy amerikai konyhás nappali pedig valódi központi élettér, amelyet a látványtervek is bemutatnak.A nappaliból közvetlen kijárat nyílik a teraszra, amely a privát kerttel együtt tökéletes helyszínt ad a pihenéshez és a közös programokhoz.Az újépítésű ingatlan kivitelezése már elindult, az alapozás befejeződött. Így a projekt jelen fázisában a leendő tulajdonos még személyre szabhatja a kialakítás számos elemét. Az ingatlan átadása 2026. Szeptemberére tehető. A megadott ár a kulcsrakész állapotú átadást tartalmazza!Az Alborétum Lakópark csendes, természetközeli környezete pedig ideális választás mindazoknak, akik új otthont keresnek nyugodt, rendezett környezetben.

További adatok

Telekterület: 235 m2
Kert mérete: 235 m2
Erkély mérete: -
Felszereltség: -
Parkolás: -
Kilátás: -
Egyéb extrák:  
-

Hirdető adatai

Hirdető neve: Otthon Centrum
Kapcsolattartó: Gáll Viola
Hirdető telefonszáma: +36 70 716 9821
Honlap: -