Ház
Origó
HázOrigoval pont a központban

Budapest, XXII.kerület


 

Ingatlan adatai

Irányár: 152 000 000 Ft
Típus: ház
Kategória: eladó
Alapterület: 88 m2
Fűtés: -
Állapota: új
Szobák száma: 5
Építés éve: 2026
Szintek száma: -

Részletes leírás

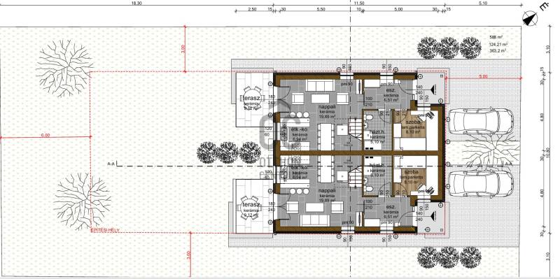
ÁLLAMI TÁMOGATÁS, (2,6 M Ft)ÁFA VISSZAIGÉNYLÉS (5%)ILLETÉKMENTESSÉG (4 %)BABAVÁRÓ ÉS TÁMOGATOTT CSOK HITEL.Eladó Budatétényben egy kétszintes, nettó 88,4(bruttó 110) nm-es N + 4 szobás iker ház, 588 nm-es telken(2 számú lakás).A ház 30-as POROTHERM téglából épül, 15 cm-es DRYVIT szigeteléssel. A nyílászárók háromrétegű üvegezésűek.A fűtést hőszivattyú (6 KW) biztosítja, padlófűtés hőleadással.A lakások kulcsrakész állapotban kerülnek átadásra. A burkolatokat, szanitereket, valamint a beltéri ajtókat az új tulajdonos választhatja ki. A parkolásra felszíni kocsibeálló áll rendelkezésre.1. Lakás: nettó 88,4(bruttó 110) nm-es N + 4 szobás , a hozzá tartozó telekrész ~230 nm Ára: 152M Ft2. Lakás: nettó 88,4(bruttó 110) nm-es N + 4 szobás , a hozzá tartozó telekrész ~230 nm Ára: 152M FtAz infrastruktúrája jó, óvoda, iskola, bevásárlási lehetőség gyalogosan pár perc alatt elérhető.Valamint a buszmegálló is pár perc sétatávolságra található.Várható átadás 2026.Nyár.Az Otthon Centrum irodáiban hitel tanácsadó segíti az igénylés teljes folyamatát, hitel felvétel esetén megkeresi az Önnek legmegfelelőbb ajánlatot a bankok kínálatából.Vegye igénybe ingyenes szolgáltatásainkat!Az ingatlan rugalmasan nézhető. Hívjon, egyeztessünk időpontot.

További adatok

Telekterület: 588 m2
Kert mérete: 588 m2
Erkély mérete: 13 m2
Felszereltség: -
Parkolás: -
Kilátás: -
Egyéb extrák:  
-

Hirdető adatai

Hirdető neve: Otthon Centrum
Kapcsolattartó: Mészárosné Sőregi Mara
Hirdető telefonszáma: +36 70 461 9656
Honlap: -