Ház
Origó
HázOrigoval pont a központban

Nógrád megye, Erdőtarcsa


 

Ingatlan adatai

Irányár: 17 000 000 Ft
Típus: ház
Kategória: eladó
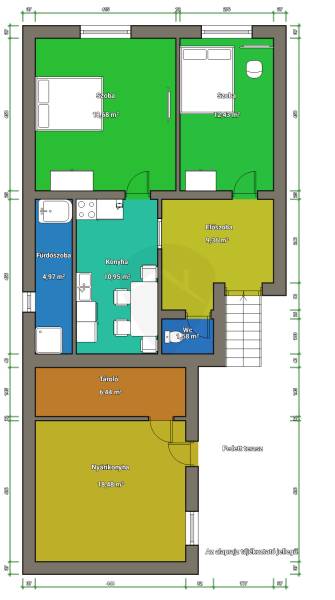
Alapterület: 57 m2
Fűtés: gáz (konvektor)
Állapota: -
Szobák száma: 2
Építés éve: 1960
Szintek száma: -

Részletes leírás

Fedezd fel ezt a varázslatos, eladó házat Erdőtarcsa szívében! Ez a téglaépítésű ingatlan 57 négyzetméteren kínál számodra kényelmes otthont, ahol minden adott a nyugodt hétköznapokhoz. A házban 2 világos szoba található, amelyek ideálisak családoknak vagy akár pároknak is. A közepes állapotú ingatlanban a fűtést gázkonvektor biztosítja, de a hangulatos kandalló is melegséget ad a téli estéken. A 15 négyzetméteres teraszra kilépve élvezheted a panorámát, amely a környező táj szépségét tárja eléd.Az ingatlan környezete csendes és barátságos, tökéletes helyszín a pihenésre és kikapcsolódásra. Erdőtarcsa egy olyan település, ahol a természet közelsége és a nyugalom találkozik a központi elhelyezkedéssel. A közeli parkok és zöld területek ideálisak a sétákhoz, futásokhoz, vagy akár a gyerekek szabadban való játékához.Extrák:-Kandalló-Gyűrűs kút-Állattartási lehetőség-Igény esetén bútorozott-Nagy telek( 2660 m2)-Plusz külön helyrajzi számon egy 994 m2 telek is A közlekedés is kiváló, hiszen az ingatlan könnyen megközelíthető autóval, és a tömegközlekedési lehetőségek is a közelben találhatóak. Így nemcsak a városban, hanem a környező településekre is könnyedén eljuthatsz. A csendes utcák és a barátságos szomszédok pedig még inkább hozzájárulnak ahhoz, hogy otthon érezd magad.Ne habozz, ha felkeltette az érdeklődésedet ez a csodás ház! Kérlek, keress bátran, ha további kérdéseid lennének, vagy szeretnél időpontot egyeztetni a megtekintésre. Az álomotthonod már csak egy lépésre van!

További adatok

Telekterület: 2 660 m2
Kert mérete: 2 660 m2
Erkély mérete: 15 m2
Felszereltség: -
Parkolás: -
Kilátás: panorámás
Egyéb extrák:  
-

Hirdető adatai

Hirdető neve: Ingatlanmentor powered by Rock Home
Kapcsolattartó: Balog Dávid
Hirdető telefonszáma: +36 70 467 6818
Honlap: -