Ház
Origó
HázOrigoval pont a központban

Tolna megye, Paks


 

Ingatlan adatai

Irányár: 199 000 000 Ft
Típus: ház
Kategória: eladó
Alapterület: 170 m2
Fűtés: -
Állapota: új
Szobák száma: 4
Építés éve: 2026
Szintek száma: -

Részletes leírás

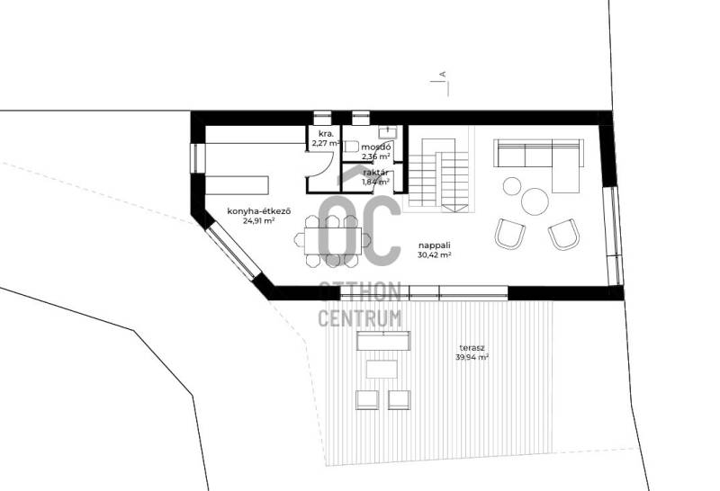
Pakson Dundi panorámás, 170 nm-es álomotthon nagy terasszal eladó.Szereti a kényelmet és a csendet, a tágas, világos tereket? Szeretne egy minőségi otthont a családjának extrákkal?Ezt a házat Önnek ajánlom!Az ingatlan téglából épül, minőségi alapanyagok felhasználásával egy többszörös szakmai díjnyertes vállalkozás kivitelezésével. Hogy milyen legyen az otthona hangulata? Ez a döntés az Ön kezében van. Ötletadónak mellékelek pár fotót.Főbb jellemzői:-ez a ház várhatóan 2026-ban kerül megépítésre Porotherm 38 X-therm téglából megfelelő szigeteléssel (A+ energetika, alacsony rezsiköltség)-nyílászárók 3 rétegű, fa szerkezetű ablakok hőszigetelő üvegezéssel, elektromos redőnnyel és rovarhálóval szerelve-hőszivattyús rendszerről működtetett padlófűtés és mennyezet hűtés gondoskodik a lakók kényelméről -mivel az ingatlan még a kivitelezési fázis előtt áll, így Önnek módjában áll a belső terek igény szerinti alakítására, a burkolatok magválasztására (adott keretek között)-a jelenlegi tervek alapján az ingatlan elosztása tökéletes lesz egy nagyobb család számára is:-a földszinten kap helyet a három szoba, melyből az egyik magában foglal egy privát fürdőt gardróbbal, valamint egy ajtót, amin keresztül a hátsó teraszra juthatunk, és madárcsicsergést hallgatva fogyaszthatjuk a reggeli kávét. Ezen a szinten van még egy fürdő, a gépészet és a garázs, illetve a felső szintre vezető lépcső-a felső szinten kerül kialakításra a tágas, napfényes nappali, étkező, konyha, kamra, mosdó és a 40 négyzetméteres impozáns terasz, ahonnan napkeltétől napnyugtáig gyönyörködhetünk a Dunai panorámában- lehetőség van még jacuzzi, illetve szauna kialakítására akár a teraszon isLegyen az Öné ez az álomotthon! Bővebb információért hívjon még ma!Teljes körű pénzügyi megoldások ügyintézése díjmentesen:* Bankfüggetlen hitelcenterünk díjmentesen versenyezteti minden bank és hitelintézet ajánlatát.* Önnek nincs más dolga, mint beszélgetni munkatársunkkal, majd a megversenyeztetett ajánlatokból kiválasztani a hosszútávon is a legmegfelelőbb konstrukciót.* Szakértőnk több mint 20 éves szakmai tapasztalattal és egyedi igényekre szabott, fogyasztóbarát lakáshitelekkel, babaváró hitellel, teljes körű CSOK ügyintézéssel várja Önt.* Előre egyeztetett időpontban.Pakson Dunai panorámás álomotthon várja leendő tulajdonosát

További adatok

Telekterület: 312 m2
Kert mérete: 312 m2
Erkély mérete: 40 m2
Felszereltség: -
Parkolás: -
Kilátás: -
Egyéb extrák:  
-

Hirdető adatai

Hirdető neve: Otthon Centrum
Kapcsolattartó: Baranyi Mónika
Hirdető telefonszáma: +36 70 388 5776
Honlap: -