Ház
Origó
HázOrigoval pont a központban

Hajdú-Bihar megye, Debrecen


 

Ingatlan adatai

Irányár: 115 000 000 Ft
Típus: ház
Kategória: eladó
Alapterület: 108 m2
Fűtés: gáz (cirko)
Állapota: új
Szobák száma: 4
Építés éve: 2025
Szintek száma: -

Részletes leírás

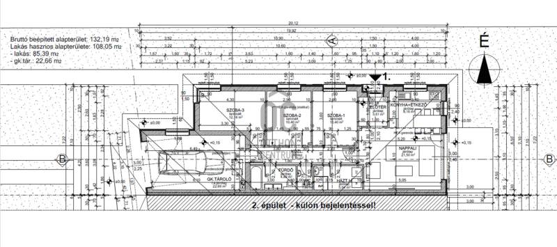
Debrecen dinamikusan fejlődő városrészében, a Jégcsarnok mögötti területen eldó, egy épülő ikerház lakása.Az ingatlan FÖLDSZINTES, konyha - étkező - nappali + 3 szobás, külön fürdőszoba + háztartási helyiség kialakítású, illetve a lakással kapcsolatos egy 22,66 m2 - es garázs.Az ingatlan beépített területe : 108 m2 + egy : 15 m2 - es terasz tartozik hozzá.Az ikerház 2 lakása nem egymáson átjárós, mindkét része utcai bejáratos, saját utcafronttal rendelkezik.A szumma telek 890 m2 , tehát lakásonkénti terület : 455 m2 . Műszaki jellemzői : - 30 - as POROTHERM NF tégla falazat- 10 cm grafit szigetelés- 3 rtg műanyag ablakok, belül fehér, kivül szines tokkal- gázcirkó fűtés, padló hőleadóval- beépített hűtő - fűtő klíma- rejtett redőnytok kialakítás- napelem csövezés, előkészítés ( a jövőbeni kiépítés során nem kell a házat szétverni )- utcafronti kerítés kivételével minden kerítés benne van az árban, a két lakás közötti elválasztó is.- \" A \" energetikai besorolás- gépkocsi felhajtó, illetve körben a járda is térkőbel kialakítva .- 3 % - os hitelre alkalmas- belső kialakítás, csempék, lamináltak, beltéri ajtók, stb... választhatóak, vevő igénye szerint készül.Az út jelenleg föld út, de a szerződés alá van írva az önkormányzattal miszerint, 2026 nyárra, ( mire elkészül az ingatlan ) elkészítik a közvilágítással együtt.Várható átadás : 2026 nyaraHa felkeltettem az érdeklődését, kérem hívjon bizalommal.

További adatok

Telekterület: 445 m2
Kert mérete: 445 m2
Erkély mérete: 15 m2
Felszereltség: -
Parkolás: -
Kilátás: -
Egyéb extrák:  
-

Hirdető adatai

Hirdető neve: Otthon Centrum
Kapcsolattartó: Tóth Ferenc
Hirdető telefonszáma: +36 70 716 9076
Honlap: -