Ház
Origó
HázOrigoval pont a központban

Budapest, XII.kerület


Jagelló út 

Ingatlan adatai

Irányár: 73 250 000 Ft
Típus: lakás (tégla)
Kategória: eladó
Alapterület: 49 m2
Fűtés: gáz (konvektor)
Állapota: -
Szobák száma: 2
Építés éve: 1950
Szintek száma: -

Részletes leírás

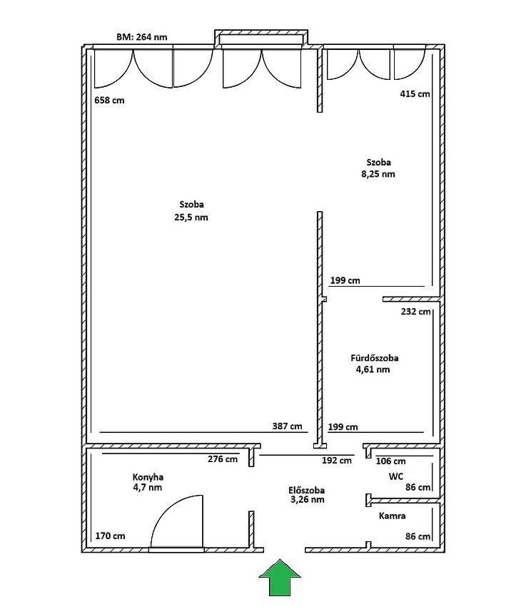
Kizárólag Irodánk kínálatában!Eladásra kínálunk a XII. kerületben, a Jagelló úton egy 2 szobás, 49 nm-es, közepes állapotú lakást egy jó állapotú társasház 2. emeletén. A lakás jelenleg 2 szobás, de igény szerint 3 szobássá alakítható.Belmagassága: 264 cm.A közös költség 12.170 Ft.A lakáshoz tartozik egy közös használatú pince is.Elhelyezkedése kiváló, közelben oktatási központok, boltok, üzletek, rendelők, parkok megtalálhatóak. Tömegközlekedés szempontjából 5 -10 percre villamosok, busz- és metrómegállók elérhetőek.Kérdés esetén keressenek minket bizalommal!Irodánk ingyenes hiteltanácsadással áll ügyfeleink rendelkezésére.Vevőink részére a közvetítés díjmentes. A hirdetésben szereplő adatok tájékoztató jellegűek.

További adatok

Telekterület: -
Kert mérete: -
Erkély mérete: -
Felszereltség: -
Parkolás: -
Kilátás: kertre néző
Egyéb extrák:  
-

Hirdető adatai

Hirdető neve: MPD Hungary Kft.
Kapcsolattartó: Dodici Quartiere Kft.
Hirdető telefonszáma: +36706500700
Honlap: -