Ház
Origó
HázOrigoval pont a központban

Pest megye, Budakalász


 

Ingatlan adatai

Irányár: 170 000 000 Ft
Típus: ház
Kategória: eladó
Alapterület: 138 m2
Fűtés: -
Állapota: új
Szobák száma: 6
Építés éve: 2025
Szintek száma: -

Részletes leírás

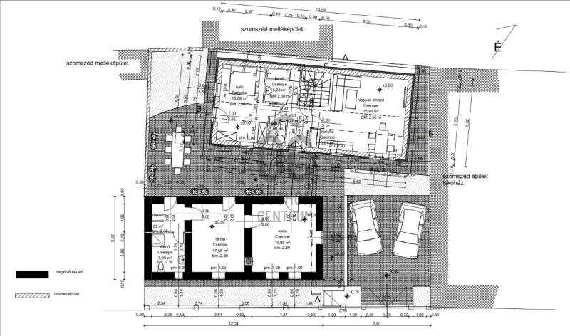
Két különálló épület • Önálló funkciók • Együtt ritka lehetőség Budakalász központjábanBudakalász egyik legkedveltebb utcájában, a Damjanich utcában található ez a két különálló házból álló ingatlan, amely külön-külön és együtt is tökéletesen funkcionál.A telek 338 m², érték védett övezetben helyezkedik el, ahol az ilyen elosztású, kétlakásos lehetőségek valódi ritkaságnak számítanak.Mindkét épület saját bejárattal, külön funkciókkal, önálló élettérrel rendelkezik.Mit tartalmaz a teljes ingatlan?- Kisebb ház (~47,55 m²) – gázfűtés + padlófűtés, külön bejárat, ideális iroda / rendelő / kis lakás- Nagyobb ház (91,9 m²) – új épületrész, hőszivattyús fűtés, két szint, világos terek- Teljes közmű (víz, csatorna, villany)- Rendezett, karbantartott kert + előkert- Esztétikus kerítés és utcakép- Értékvédett környezet – Budakalász egyik legszebb része- Központi elhelyezkedés, stabil ingatlanértékKiemelt előnyök egyben vásárlás esetén- Tökéletes többgenerációs otthon- Ideális otthon + vállalkozás kombináció- Két külön lakóegység → kettős kiadási lehetőség- Befektetőknek különösen vonzó → erős hozam, gyors megtérülés- A két épület közelsége miatt közös, de szeparált élettér alakítható kiKiknek ajánlom ezt az egyedülálló kombinációt? - nagycsaládoknak, akik együtt, de külön laknának - vállalkozóknak → iroda + családi ház egy telken - befektetőknek → két lakás, két bevételi forrás - barátoknak / családtagoknak, akik közösen vásárolnánakEz az ingatlan két önálló funkcionáló házat ad egy telek áráért, ráadásul Budakalász szívében, ahol ritkán adódik ilyen lehetőség.

További adatok

Telekterület: 338 m2
Kert mérete: 338 m2
Erkély mérete: -
Felszereltség: -
Parkolás: -
Kilátás: -
Egyéb extrák:  
-

Hirdető adatai

Hirdető neve: Otthon Centrum
Kapcsolattartó: Éberl Viktória
Hirdető telefonszáma: +36 70 388 6166
Honlap: -