Ház
Origó
HázOrigoval pont a központban

Hajdú-Bihar megye, Hajdúsámson


 

Ingatlan adatai

Irányár: 60 000 000 Ft
Típus: ház
Kategória: eladó
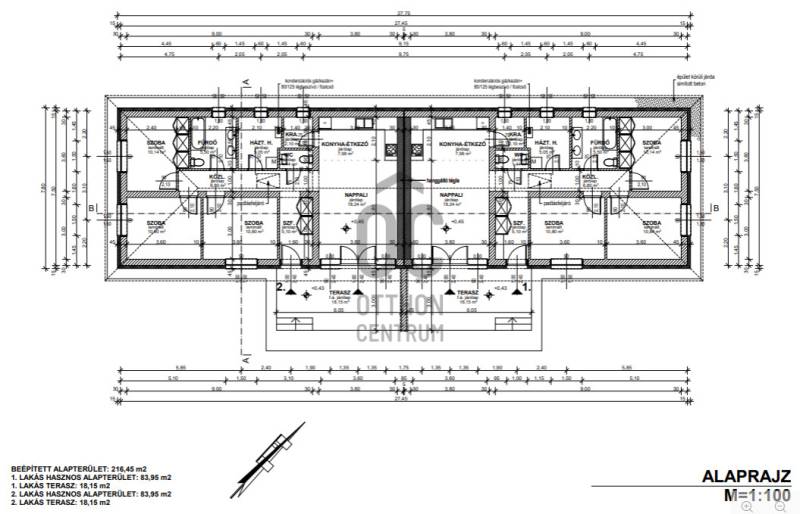
Alapterület: 84 m2
Fűtés: -
Állapota: új
Szobák száma: 4
Építés éve: 2026
Szintek száma: -

Részletes leírás

A Szűcs utca közelében új építésű ikerház eladóÚj építésű ikerházak Sámsonkertben, kedvező áron eladók!Debrecen vonzáskörzetében, Debrecenből 4 sávos úton megközelíthető Sámsonkertben12 db ikerház épül.Az ingatlanokhoz 300-400 nm-es önálló telekrész tartozik, az ikerházak nettó alapterülete83 nm, mindegyikhez 18 nm terasz tartozik.Főbb jellemzők:- POROTHERM 30-as tégla falazat- 15 cm homlokzati hőszigetelés- cserép tetőhéjazat- 3 rétegű üvegezésű műanyag ablakok- hőszivattyús fűtés, padlófűtésen keresztül- nappali-amerikai konyha-étkező + 3 hálószoba- minden lakóegység önálló házi vízművel rendelkezikVárható átadás 2026. 12. 31.CSOK+, 3 %-os hitel igénybe vehető!

További adatok

Telekterület: 400 m2
Kert mérete: 400 m2
Erkély mérete: 18 m2
Felszereltség: -
Parkolás: -
Kilátás: -
Egyéb extrák:  
-

Hirdető adatai

Hirdető neve: Otthon Centrum
Kapcsolattartó: Koroknainé Erzsébet
Hirdető telefonszáma: +36 70 461 9356
Honlap: -