Ház
Origó
HázOrigoval pont a központban

Bács-Kiskun megye, Ágasegyháza


Ágasegyháza 

Ingatlan adatai

Irányár: 45 900 000 Ft
Típus: ház
Kategória: eladó
Alapterület: 85 m2
Fűtés: -
Állapota: új
Szobák száma: 4
Építés éve: -
Szintek száma: -

Részletes leírás

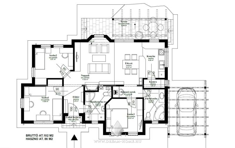
Ágasegyházán új építésű ház eladó! 45,9 M FtKecskeméttől 20 percnyire, a település nyugodt, csendes részén kínálok prémium minőségi tartalommal megépített, 85 négyzetméter hasznos alapterülettel rendelkező háromszobás családi házat. Az 1102 négyzetméteres telek kiváló lehetőséget nyújt a hangulatos szabadidős tevékenységekhez, legyen az akár egy kerti sütögetés a barátokkal.A ház fekvése benapozottság szempontjából tökéletes, a lenyugvó nap a tágas, amerikai stílusban megépült nappali-konyha-étkezőt világítja meg, a hajnali napsugarak a hálóban keltik a lakókat. A ház kialakításakor különös figyelemmel voltunk arra, hogy akár a kétgyermekes CSOK-ra is alkalmas legyen. 2 gyerekszoba + szülői háló, és a világos, tágas nappali az egész család számára biztosítja az Otthon fogalmát úgy, hogy mindenkinek meglegyen igény szerint a saját privát szférája.A hirdetés gondolatébresztő, kulcsátadás szerződéskötéstől számítva 10 hónap. A fenti ár tartalmazza az adott négyzetméterben a kivitelezési költséget, az összközművesített telek árát.Akár a hirdetésben szereplő alaprajzzal, de természetesen az Ön által megálmodott, szabadon tervezett kialakítással is megépíthető a technológiánkkal egy kiváló energetikával és minimális rezsiköltséggel rendelkező Otthon – a Családja részére. További információkért kérem hívjon egy személyes prezentációért. Irodánkban hitelügyintézéssel várjuk, az Ön számára legkedvezőbb, személyreszabott ajánlattal – 30 bank ajánlatából választjuk ki a legmegfelelőbbet. CSOK, Babaváró ügyintézés.KMUM1157Lévay Márton+36703190804

További adatok

Telekterület: 1 102 m2
Kert mérete: 1 102 m2
Erkély mérete: -
Felszereltség: -
Parkolás: -
Kilátás: -
Egyéb extrák:  
-

Hirdető adatai

Hirdető neve: Dream-Home Ingatlaniroda és Új Ház Építő Centrum
Kapcsolattartó: Lévay Márton
Hirdető telefonszáma: +36703190804
Honlap: -