Ház
Origó
HázOrigoval pont a központban

Bács-Kiskun megye, Kerekegyháza


Kerekegyháza 

Ingatlan adatai

Irányár: 51 990 000 Ft
Típus: ház
Kategória: eladó
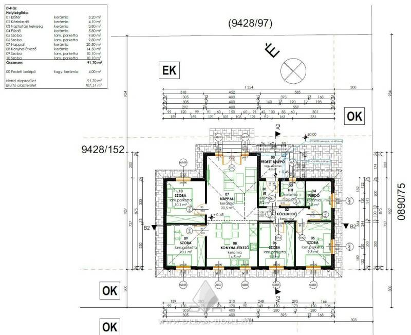
Alapterület: 91 m2
Fűtés: egyéb
Állapota: új
Szobák száma: 5
Építés éve: -
Szintek száma: -

Részletes leírás

Kerekegyházán új építésű ház eladó! 54.9 M helyett Február 10-ig 51.990 FtKecskeméttől 15 kilométerre, a város kiemelten jól megközelíthető helyén kínálok eladásra egy prémium minőségi tartalommal megépített, 91 négyzetméter hasznos alapterülettel rendelkező négyszobás családi házat. Buszmegálló a telek előtt, a központ, iskola, boltok sétálva megközelítve maximum 10 percet vesz igénybe.A 860 négyzetméteres telken kiváló lehetőség adódik a kerti szabadidős tevékenységekhez is.A ház fekvése benapozottság szempontjából tökéletes, a lenyugvó nap a tágas (35 négyzetméteres) nappali-konyha-étkezőt világítja meg, a hajnali napsugarak a hálóban keltik a lakókat.A ház kialakításakor különös figyelemmel voltunk arra, hogy akár a háromgyermekes CSOK-ra is alkalmas legyen. 3 gyerekszoba + szülői háló, és a világos, tágas nappali az egész család számára biztosítja az Otthon fogalmát úgy, hogy mindenkinek meglegyen igény szerint a saját privát szférája.A hirdetés gondolatébresztő, kulcsátadás 2023. augusztus.A fenti ár tartalmazza az adott négyzetméterben a kivitelezési költséget, az összközművesített telek árát (háromfázisú villanyt, csatornát, a 100 m mélyre fúrott kútat, a gáz lekötést , és természetesen a csatornázást).Akár a hirdetésben szereplő alaprajzzal, de természetesen az Ön által megálmodott, szabadon tervezett kialakítással is megépíthető a technológiánkkal egy kiváló energetikával és minimális rezsiköltséggel rendelkező Otthon – a Családja részére.További információkért kérem hívjon egy személyes prezentációért.Irodánkban hitelügyintézéssel várjuk, az Ön számára legkedvezőbb, személyreszabott ajánlattal – 30 bank ajánlátából választjuk ki a legmegfelelőbbet. CSOK, Babaváró ügyintézés.Lévay Márton+36703190804KMUM1156

További adatok

Telekterület: 860 m2
Kert mérete: 860 m2
Erkély mérete: -
Felszereltség: -
Parkolás: -
Kilátás: -
Egyéb extrák:  
-

Hirdető adatai

Hirdető neve: Dream-Home Ingatlaniroda és Új Ház Építő Centrum
Kapcsolattartó: Lévay Márton
Hirdető telefonszáma: +36703190804
Honlap: -