Ház
Origó
HázOrigoval pont a központban

Bács-Kiskun megye, Kecskemét


Kecskemét 

Ingatlan adatai

Irányár: 33 200 000 Ft
Típus: ház
Kategória: eladó
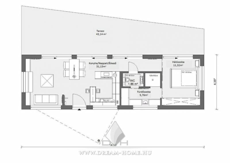
Alapterület: 50 m2
Fűtés: egyéb
Állapota: új
Szobák száma: 2
Építés éve: -
Szintek száma: -

Részletes leírás

Modern, hangulatos kisház eladó csendes, nyugodt környezetbenMiért költözne lakásba, ha ezen az áron saját kertes ingatlana is lehet?Kecskeméttől pár km-re, 50nm alapterületű, könnyűszerkezetes, gondosan megtervezett 2 szobás kisház, 1600nm-es rendezett összközműves telken eladó.A ház nagyszerű elrendezése miatt nagyon tágas érzést nyújt.Az ár tartalmazza a teljes ház árát kulcsra kész állapotban, belül burkolatokkal, szaniterekkel, illetve tartalmazza a telek árát is!Az ár nem tartalmazza a konyhabútor árát!A terv saját igény szerint módosítható, napelemmel, nyitott, burkolt vagy fa terasszal bővíthető.Ez egy újépítésű gondolatébresztő, ami akár 6 hónapon belül az Öné lehet!Keressen bizalommal!Szabó Zoltán+36309855534KMUZ1145

További adatok

Telekterület: 1 600 m2
Kert mérete: 1 600 m2
Erkély mérete: -
Felszereltség: -
Parkolás: -
Kilátás: -
Egyéb extrák:  
-

Hirdető adatai

Hirdető neve: Dream-Home Ingatlaniroda és Új Ház Építő Centrum
Kapcsolattartó: Lévay-Bordi Regina
Hirdető telefonszáma: +36-70/342-5598
Honlap: -